赤坂1丁目50坪超え事務所
居抜き物件・未公開物件多数あります!こちらよりHPにアクセスください!
| 賃料・費用 |
55万440円
(+管理費等 12万2,320円)
坪単価:約9,899円/坪
敷500万4,000円礼なし仲55万440円
保証金:なし
|
|---|---|
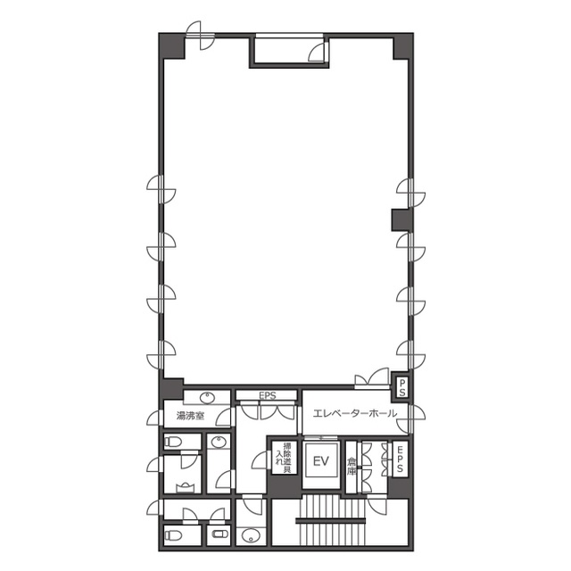
| 専有面積 | 183.84m² (55.61坪) |
| 住所 | 福岡県福岡市中央区赤坂1-6 |
| 交通 | 赤坂駅(徒歩4分)道順を見る |
| 階/階建 | 5階 / 6階建 |
| 築年月 | 築36年(1989年6月) |
| 駐車場 |
なし
|
空室確認、見学、詳細を知りたい方はこちら!
お電話の際は「連合隊の物件」とお伝えください。
情報掲載期限:あと24日(更新日 2026/4/11)
- 物件写真・概要
- 周辺地図
-
空室確認、見学、詳細を知りたい方はこちら!
おすすめポイント
- 駅徒歩5分以内
交通色がついているアイコンをクリックすると、本物件までの道順を見ることができます。
物件概要
所在階/建物の階建 5階 / 地上6階建 主要採光面 構造 間取り 契約期間 2年間 権利金 住宅保険 お問合せください 引渡し 相談 管理人 取引態様 仲介 物件No gg080411 設備・特徴 - エレベーター
- 個別空調
備考 福岡で1986年創業!テナント専門の弊社に貸店舗・事務所のことは何でもお任せください! 居抜き物件・非公開物件多数ございます! 新着情報も豊富です!開店・移転・増店・居抜き売却はお気軽にお問い合わせください! 主な周辺施設色がついているアイコンをクリックすると、本物件までの道順を見ることができます。
-
※連合隊は物件情報の精度向上に努めています:「物件情報に誤りがある」「成約済みである」などお気付きの点がございましたらこちらよりご連絡ください。
写真枚数:7枚
福岡市全域のテナントはもちろん、郊外の物件もお任せください!
昭和60年に創業以来、福岡市内及び近郊の事業用物件を専門に取り扱う不動産会社です。 店舗・居抜・事務所のことなら何でもご相談下さい。 ご相談は無料!まずはお電話下さい!