倉庫事務所駐車場付き
居抜き物件・未公開物件多数あります!こちらよりHPにアクセスください!
| 賃料・費用 |
24万2,000円
(+管理費等 なし)
坪単価:約1.2万円/坪
敷72万6,000円(3ヶ月)礼なし仲24万2,000円
保証金:なし
|
|---|---|
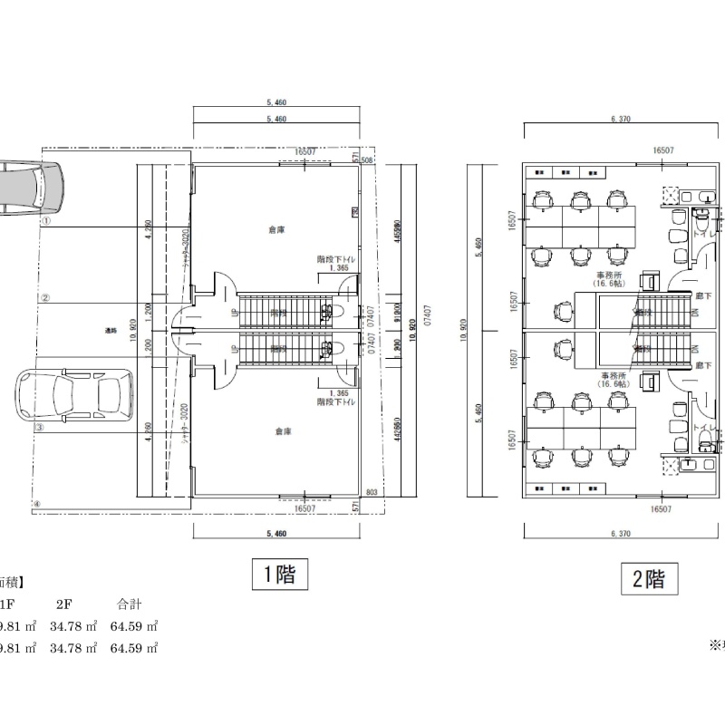
| 専有面積 | 64.59m² (19.53坪) |
| 住所 | 福岡県福岡市東区和白1-1 |
| 交通 | 唐の原駅(徒歩6分)道順を見る |
| 階/階建 | 1階 / 2階建 |
| 築年月 | 築1年未満(2025年7月) |
| 駐車場 |
あり (無料) 駐車可能台数:2台
|
空室確認、見学、詳細を知りたい方はこちら!
お電話の際は「連合隊の物件」とお伝えください。
新着 情報掲載期限:あと29日(更新日 2026/3/23)
- 物件写真・概要
- 周辺地図
-
空室確認、見学、詳細を知りたい方はこちら!
おすすめポイント
- 即入居可
- 駐車2台以上可
交通色がついているアイコンをクリックすると、本物件までの道順を見ることができます。
物件概要
所在階/建物の階建 1階 / 地上2階建 主要採光面 構造 木造 間取り 契約期間 権利金 なし 住宅保険 お問合せください 出店推奨業種 その他(1階倉庫2階事務所) 出店不可業種 引渡し 即時 管理人 取引態様 仲介 物件No gg080325 設備・特徴 備考 福岡で1986年創業!テナント専門の弊社に貸店舗・事務所のことは何でもお任せください! 居抜き物件・非公開物件多数ございます! 新着情報も豊富です!開店・移転・増店・居抜き売却はお気軽にお問い合わせください! 主な周辺施設色がついているアイコンをクリックすると、本物件までの道順を見ることができます。
-
※連合隊は物件情報の精度向上に努めています:「物件情報に誤りがある」「成約済みである」などお気付きの点がございましたらこちらよりご連絡ください。
写真枚数:9枚
福岡市全域のテナントはもちろん、郊外の物件もお任せください!
昭和60年に創業以来、福岡市内及び近郊の事業用物件を専門に取り扱う不動産会社です。 店舗・居抜・事務所のことなら何でもご相談下さい。 ご相談は無料!まずはお電話下さい!