六本松新築路面
居抜き物件・未公開物件多数あります!こちらよりHPにアクセスください!
| 賃料・費用 |
35万2,000円
(+管理費等 1万1,000円)
坪単価:約2.5万円/坪
敷32万円礼105万6,000円(3ヶ月)仲35万2,000円
保証金:なし
|
|---|---|
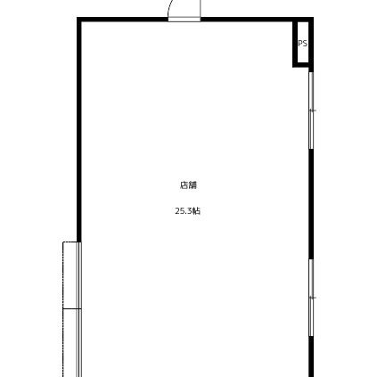
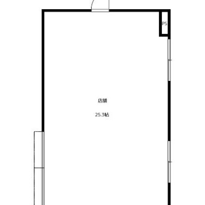
| 専有面積 | 46.18m² (13.96坪) |
| 住所 | 福岡県福岡市中央区谷1-14 |
| 交通 | |
| 階/階建 | 1階 / 2階建 |
| 築年月 | 築1年未満(2026年1月) |
| 駐車場 |
あり (2万4,200円/台) 駐車可能台数:3台
|
空室確認、見学、詳細を知りたい方はこちら!
お電話の際は「連合隊の物件」とお伝えください。
情報掲載期限:あと24日(更新日 2026/2/24)
- 物件写真・概要
- 周辺地図
-
空室確認、見学、詳細を知りたい方はこちら!
おすすめポイント
- 即入居可
- 駐車2台以上可
- スケルトン
- 出店するなら…この業種がおすすめ!
- 飲食全般(重飲食含む)

- 喫茶・カフェ(軽飲食)

- バー・クラブ・スナック

- 小売・物販

- 美容・健康・介護

- 医療

- 教育・スクール

- 事務所

- アミューズメント

物件概要
所在階/建物の階建 1階 / 地上2階建 主要採光面 構造 鉄骨造 間取り 契約期間 2年間 権利金 なし 住宅保険 お問合せください 出店推奨業種 飲食全般(重飲食含む)、喫茶・カフェ(軽飲食)、小売・物販 出店不可業種 その他費用 一時金 - シャッターリモコン代:3万3,000円
引渡し 即時 管理人 取引態様 仲介 物件No gg080227 設備・特徴 - スケルトン
備考 福岡で1986年創業!テナント専門の弊社に貸店舗・事務所のことは何でもお任せください! 居抜き物件・非公開物件多数ございます! 新着情報も豊富です!開店・移転・増店・居抜き売却はお気軽にお問い合わせください! 主な周辺施設色がついているアイコンをクリックすると、本物件までの道順を見ることができます。
-
※連合隊は物件情報の精度向上に努めています:「物件情報に誤りがある」「成約済みである」などお気付きの点がございましたらこちらよりご連絡ください。
写真枚数:5枚
福岡市全域のテナントはもちろん、郊外の物件もお任せください!
昭和60年に創業以来、福岡市内及び近郊の事業用物件を専門に取り扱う不動産会社です。 店舗・居抜・事務所のことなら何でもご相談下さい。 ご相談は無料!まずはお電話下さい!