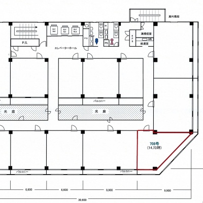
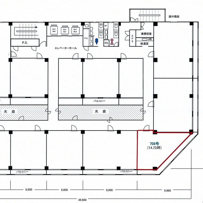
博多偕成ビル7階
居抜き物件・未公開物件多数あります!こちらよりHPにアクセスください!
この物件の契約期間は 3年間です。
定期借家物件は、賃貸借契約期間満了後、原則として契約の更新ができない物件です。再契約の可否については不動産会社にお問合せください。
| 賃料・費用 |
17万132円
(+管理費等 5万6,711円)
坪単価:約1.2万円/坪
敷185万5,992円礼なし仲17万132円
保証金:なし
|
|---|---|
| 専有面積 | 48.69m² (14.72坪) |
| 住所 | 福岡県福岡市博多区博多駅東2-5-28 |
| 交通 | 博多駅(徒歩5分)道順を見る |
| 階/階建 | 7階 / 10階建(地下2階) |
| 築年月 | 築51年(1974年7月) |
| 駐車場 |
あり (3万8,500円/台)
|
空室確認、見学、詳細を知りたい方はこちら!
お電話の際は「連合隊の物件」とお伝えください。
情報掲載期限:あと26日(更新日 2026/2/10)
- 物件写真・概要
- 周辺地図
-
空室確認、見学、詳細を知りたい方はこちら!
おすすめポイント
- 即入居可
- 駅徒歩5分以内
- 駐車場あり
交通色がついているアイコンをクリックすると、本物件までの道順を見ることができます。
物件概要
所在階/建物の階建 7階 / 地上10階 地下2階建 主要採光面 構造 鉄骨鉄筋コンクリート(SRC)造 間取り 契約期間 定期借家(3年間) 権利金 なし 住宅保険 お問合せください 引渡し 即時 管理人 取引態様 仲介 物件No gg080202 設備・特徴 - エレベーター
- 男女別トイレ(共用部)
- 個別空調
備考 福岡で1986年創業!テナント専門の弊社に貸店舗・事務所のことは何でもお任せください! 居抜き物件・非公開物件多数ございます! 新着情報も豊富です!開店・移転・増店・居抜き売却はお気軽にお問い合わせください! 主な周辺施設色がついているアイコンをクリックすると、本物件までの道順を見ることができます。
-
※連合隊は物件情報の精度向上に努めています:「物件情報に誤りがある」「成約済みである」などお気付きの点がございましたらこちらよりご連絡ください。
写真枚数:15枚
福岡市全域のテナントはもちろん、郊外の物件もお任せください!
昭和60年に創業以来、福岡市内及び近郊の事業用物件を専門に取り扱う不動産会社です。 店舗・居抜・事務所のことなら何でもご相談下さい。 ご相談は無料!まずはお電話下さい!