鶴田ビル
ここに注目!昭和通りに面した一棟貸し貸店舗事務所です。
居抜き物件・未公開物件多数あります!こちらよりHPにアクセスください!
この物件の契約期間は 10年間です。
定期借家物件は、賃貸借契約期間満了後、原則として契約の更新ができない物件です。再契約の可否については不動産会社にお問合せください。
| 賃料・費用 |
132万円
(+管理費等 なし)
坪単価:約1.6万円/坪
敷1,500万円礼なし仲132万円
保証金:なし
|
|---|---|
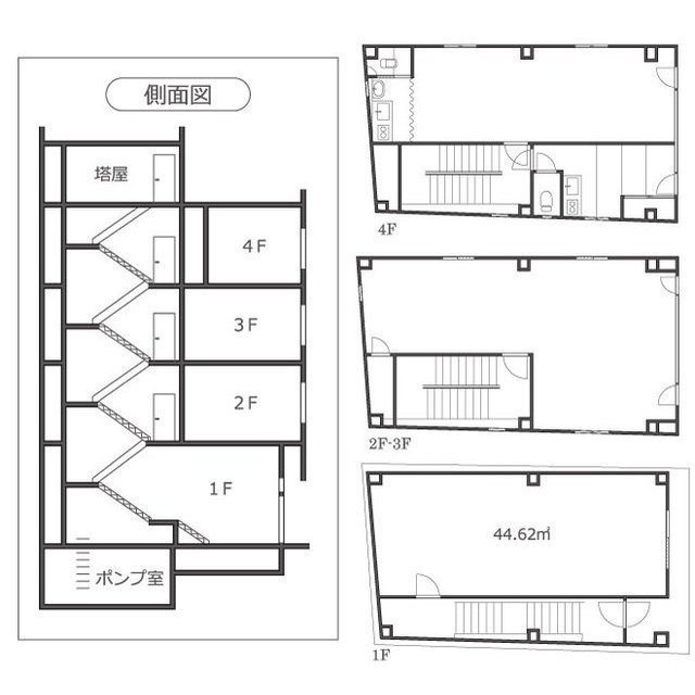
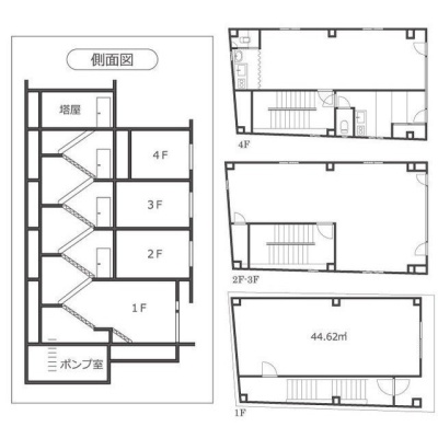
| 専有面積 | 281.27m² (85.08坪) |
| 住所 | 福岡県福岡市中央区天神3-3-2 |
| 交通 | 天神駅(徒歩3分)|西鉄福岡(天神)駅(徒歩6分)|天神南駅(徒歩9分)道順を見る |
| 階/階建 | 5階建(地下1階) |
| 築年月 | 築42年(1983年10月) |
| 駐車場 |
なし
|
空室確認、見学、詳細を知りたい方はこちら!
お電話の際は「連合隊の物件」とお伝えください。
情報掲載期限:あと26日(更新日 2026/1/27)
- 物件写真・概要
- 周辺地図
-
空室確認、見学、詳細を知りたい方はこちら!
おすすめポイント
- 駅徒歩3分以内
- 幹線道路沿い
- 出店するなら…この業種がおすすめ!
- 飲食全般(重飲食含む)

- 喫茶・カフェ(軽飲食)

- バー・クラブ・スナック

- 小売・物販

- 美容・健康・介護

- 医療

- 教育・スクール

- 事務所

- アミューズメント

※出店不可の業種:飲食全般、水商売
交通色がついているアイコンをクリックすると、本物件までの道順を見ることができます。
物件概要
建物の階建 地上5階 地下1階建 総戸数 構造 鉄骨鉄筋コンクリート(SRC)造 間取り 契約期間 定期借家(10年間) 権利金 住宅保険 出店推奨業種 美容・健康・介護、教育・スクール、事務所 出店不可業種 飲食全般、水商売 引渡し 相談 管理人 取引態様 仲介 物件No gd0711027 設備・特徴 - 幹線道路沿い
- ガス設備
- 給排水設備
備考 福岡で1986年創業!テナント専門の弊社に貸店舗・事務所のことは何でもお任せください! 居抜き物件・非公開物件多数ございます! 新着情報も豊富です!開店・移転・増店・居抜き売却はお気軽にお問い合わせください! 主な周辺施設色がついているアイコンをクリックすると、本物件までの道順を見ることができます。
-
※連合隊は物件情報の精度向上に努めています:「物件情報に誤りがある」「成約済みである」などお気付きの点がございましたらこちらよりご連絡ください。
写真枚数:2枚
福岡市全域のテナントはもちろん、郊外の物件もお任せください!
昭和60年に創業以来、福岡市内及び近郊の事業用物件を専門に取り扱う不動産会社です。 店舗・居抜・事務所のことなら何でもご相談下さい。 ご相談は無料!まずはお電話下さい!