倉庫付貸事務所fk7381
ここに注目!福岡県大野城市仲畑に、新しいビジネスの拠点をお探しの方へ、魅力的な「倉庫付貸事務所」が誕生しました!2025年12月築の築浅物件で、真新しい空間で気持ち良くスタートを切っていただけます。広々とした126.02㎡のスペースは、事務所と倉庫を兼ね備え、多様なビジネススタイルに対応可能です。 特に嬉しいのは、無料駐車場が3台も完備されている点。車での通勤や荷物の搬入が多い事業には、大変便利な環境です。OAフロアやミニキッチン、給湯室、男女別トイレ、セキュリティ設備、照明器具、IHヒーターなど、快適なオフィス環境をサポートする設備が充実しているのも見逃せません。 JR鹿児島本線「笹原駅」、西鉄天神大牟田線「雑餉隈駅」の複数路線が利用でき、アクセスも良好。徒歩圏内にはコンビニやドラッグストア、ワークマンプラスもあり、日々の業務や休憩時にも便利です。ぜひこの機会に、新しい事業の可能性を広げる場所としてご検討ください。
| 賃料・費用 |
36万3,000円
(+管理費等 -円)
坪単価:約9,523円/坪
敷165万円礼36万3,000円(1ヶ月)仲36万3,000円
|
|---|---|
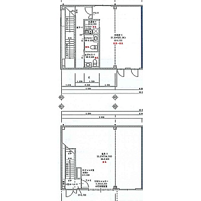
| 専有面積 | 126.02m² (38.12坪) |
| 住所 | 福岡県大野城市仲畑 (詳細非公開) |
| 交通 | 笹原駅(徒歩30分)|雑餉隈駅(徒歩21分) |
| 階/階建 | 2階建 |
| 築年月 | 築1年未満(2025年12月) |
| 駐車場 |
あり 駐車可能台数:3台
|
空室確認、見学、詳細を知りたい方はこちら!
お電話の際は「連合隊の物件」とお伝えください。
新着 情報掲載期限:あと29日(更新日 2026/2/5)
- 物件写真・概要
- 周辺地図
-
空室確認、見学、詳細を知りたい方はこちら!
おすすめポイント
- 即入居可
- 駐車2台以上可
- 複数路線利用可
- 事務所付
- 出店するなら…この業種がおすすめ!
- 飲食全般(重飲食含む)

- 喫茶・カフェ(軽飲食)

- バー・クラブ・スナック

- 小売・物販

- 美容・健康・介護

- 医療

- 教育・スクール

- 事務所

- アミューズメント

交通
- 笹原駅JR鹿児島本線徒歩30分(約2.4km)
- 雑餉隈駅西鉄天神大牟田線徒歩21分(約1.7km)
物件概要
所在階/建物の階建 101 / 地上2階建 主要採光面 構造 鉄骨造 間取り 契約期間 2年間 権利金 住宅保険 出店推奨業種 事務所 出店不可業種 用途地域 - 準工業地域
引渡し 即時 管理人 取引態様 仲介 物件No fk7381 設備・特徴 - 複数路線利用可
- 照明器具付
- 給排水設備
- 事務所付
備考 保証会社加入必須 事業用火災保険加入必須 OAフロア ミニキッチン 給湯室 センサーライト 手動シャッター 男女別トイレ メールBOX セキュリティ 照明 IHヒーター 主な周辺施設
- ファミリーマート大野城仲畑一丁目店約571m(徒歩8分)
- エディオンつきぐま店約1.4km(徒歩18分)
- ディスカウントドラッグコスモス板付店約984m(徒歩13分)
- ワークマンプラス大野城仲畑店約915m(徒歩12分)
- 福岡麦野郵便局約1.3km(徒歩16分)
- 飯塚信用金庫諸岡支店約1.8km(徒歩22分)
- 佐賀銀行麦野支店約1.7km(徒歩22分)
- JA福岡市東部月隈支店約2km(徒歩25分)
-
※連合隊は物件情報の精度向上に努めています:「物件情報に誤りがある」「成約済みである」などお気付きの点がございましたらこちらよりご連絡ください。
写真枚数:28枚
福岡の不動産に関することご相談ください♪♪
不動産の事なら全てお任せ☆ 新築・中古 戸建・マンション・店舗・リフォーム 売買から賃貸まで承ります。 まずは、ご相談ください!! フリーダイヤル 0120ー72ー1414