ここに注目!福岡県大野城市仲畑に、新しいビジネスの拠点に最適な、倉庫付き貸事務所のご紹介です!2025年12月竣工の真新しい新築物件で、気持ちよく事業をスタートしていただけます。 広々とした専有面積252.0㎡は、ゆとりある空間で、様々な事業展開に対応可能です。ビジネスを快適にサポートする設備も充実しています。OAフロア完備で快適なオフィス環境が整い、ミニキッチンや給湯室も完備。さらに、防犯カメラやセキュリティ設備が整っており、安心してお仕事に集中できる環境です。 賃料に嬉しい6台分の駐車場が含まれており、来客時や従業員の方の通勤にも大変便利です。鉄骨造2階建てのしっかりとした建物が、新しい事業のスタートを力強く後押しいたします。ぜひ一度、この素晴らしい空間をご自身の目でお確かめくださいませ。
| 賃料・費用 |
72万6,000円
(+管理費等 なし)
坪単価:約9,524円/坪
敷330万円礼72万6,000円(1ヶ月)仲72万6,000円
保証金:なし
|
|---|---|
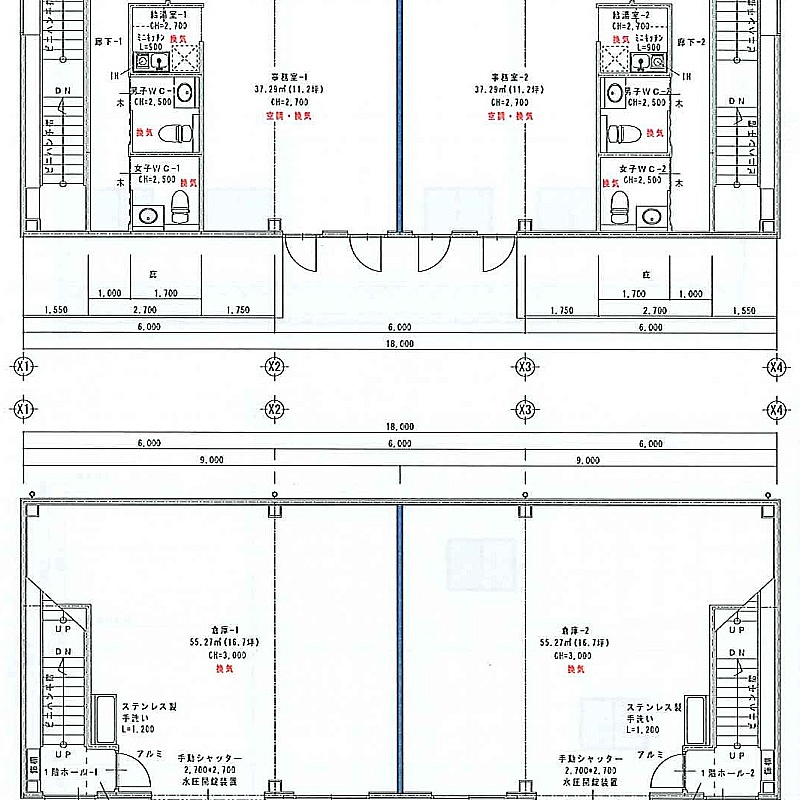
| 専有面積 | 252m² (76.23坪) |
| 住所 | 福岡県大野城市仲畑 (詳細非公開) |
| 交通 | 笹原駅(徒歩30分)|雑餉隈駅(徒歩21分) |
| 階/階建 | 2階建 |
| 築年月 | 新築(2025年12月) |
| 駐車場 |
あり 駐車可能台数:6台
6台/賃料に含む |
空室確認、見学、詳細を知りたい方はこちら!
お電話の際は「連合隊の物件」とお伝えください。
情報掲載期限:あと29日(更新日 2026/2/5)
- 物件写真・概要
- 周辺地図
-
空室確認、見学、詳細を知りたい方はこちら!
おすすめポイント
- 即入居可
- 複数路線利用可
- 駐車2台以上可
- 出店するなら…この業種がおすすめ!
- 飲食全般(重飲食含む)

- 喫茶・カフェ(軽飲食)

- バー・クラブ・スナック

- 小売・物販

- 美容・健康・介護

- 医療

- 教育・スクール

- 事務所

- アミューズメント

交通
- 笹原駅JR鹿児島本線徒歩30分(約2.4km)
- 雑餉隈駅西鉄天神大牟田線徒歩21分(約1.7km)
物件概要
建物の階建 地上2階建 総戸数 構造 鉄骨造 間取り 契約期間 2年間 権利金 なし 住宅保険 出店推奨業種 事務所 出店不可業種 用途地域 - 準工業地域
引渡し 即時 管理人 取引態様 仲介 物件No fk7382 設備・特徴 - 複数路線利用可
- 照明器具付
- 給排水設備
備考 保証会社加入必須 事業用火災保険加入必須 1棟(101+102)防犯カメラ各1階2か所2階2か所設置(モニター、録画機) OAフロア ミニキッチン 給湯室 センサーライト 手動シャッター 男女別トイレ メールBOX セキュリティ 照明 IHヒーター 主な周辺施設
- ファミリーマート大野城仲畑一丁目店約571m(徒歩8分)
- 社会福祉法人福笑会隅田保育園約861m(徒歩11分)
- 福岡麦野郵便局約1.3km(徒歩16分)
- 飯塚信用金庫諸岡支店約1.8km(徒歩22分)
- エディオン大谷デンキ板付店約1.7km(徒歩21分)
- 佐賀銀行麦野支店約1.7km(徒歩22分)
- ディスカウントドラッグコスモス三筑店約1.6km(徒歩20分)
- 医療法人社団杏林会金隈病院約2.1km(徒歩26分)
-
※連合隊は物件情報の精度向上に努めています:「物件情報に誤りがある」「成約済みである」などお気付きの点がございましたらこちらよりご連絡ください。
写真枚数:26枚
福岡の不動産に関することご相談ください♪♪
不動産の事なら全てお任せ☆ 新築・中古 戸建・マンション・店舗・リフォーム 売買から賃貸まで承ります。 まずは、ご相談ください!! フリーダイヤル 0120ー72ー1414