Mitte
ここに注目!2026年3月完成予定の新築マンション「Mitte」で、新しい暮らしを始めてみませんか?広々とした59.83㎡の2LDKは、南東向きで日当たりも良好。新婚さんや子育てファミリーにぴったりの、明るく快適な住まいです。 インターネット利用料無料は毎月の出費を抑える嬉しいポイント。ウォークインクローゼットやシューズボックスで収納もたっぷり確保でき、お部屋をすっきりと保てます。システムキッチンは3口コンロで料理もはかどり、カウンターキッチンでご家族との会話も弾みますね。バス・トイレ別はもちろん、浴室乾燥機や追い焚き機能も完備。独立洗面台や温水洗浄トイレも嬉しいポイントです。 オートロックや防犯カメラ、モニタ付インターホンでセキュリティも安心。宅配BOXがあるので、留守中のお荷物もスムーズに受け取れます。周辺にはコンビニや公園、スーパーも揃い、日々の暮らしに便利。駐車場も完備しており、お車をお持ちの方も安心です。さらに、初期費用はクレジットカード払いも可能で、新生活のスタートを応援します。
| 賃料・費用 |
10万6,000円(+管理費等 6,000円)
敷10万6,000円(1ヶ月)礼10万6,000円(1ヶ月)仲11万6,600円
|
|---|---|
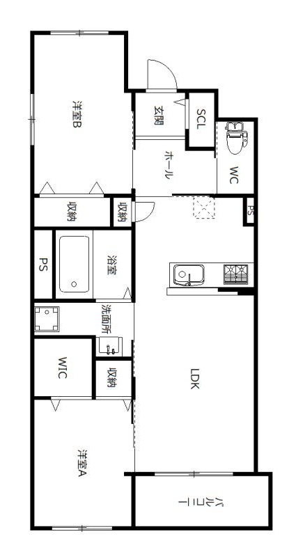
| 間取・専有 |
2LDK(59.83m²)└ LDK 洋室 洋室
|
| 住所 | 福岡県大野城市仲畑4-2-20 |
| 交通 | 雑餉隈駅(徒歩20分)道順を見る |
| 築年月 | 建築中(2026年3月完成予定) |
| 駐車場 |
あり (7,000円/台)
|
空室確認、見学、詳細を知りたい方はこちら!
お電話の際は「連合隊の物件」とお伝えください。
情報掲載期限:あと3日(更新日 2026/1/23)
- 物件写真・概要
- 周辺地図
-
空室確認、見学、詳細を知りたい方はこちら!
おすすめポイント
- バス/トイレ別
- オートロック
- 2階以上
- 都市ガス
- 室内洗濯機置場
- 駐車場あり
- エアコン付
- 独立洗面台
- 追い焚き風呂
- ペット相談可
- デザイナーズ
- 敷金・礼金0円
- 近くて便利!徒歩5分以内にある施設
- 4分
4分- 5分
5分- 周辺施設を地図で確認
交通色がついているアイコンをクリックすると、本物件までの道順を見ることができます。
物件概要
所在階/建物の階建 5号室 / 地上5階建 総戸数 20戸 主要採光面 南東 構造 鉄筋コンクリート(RC)造 バルコニー あり契約期間 2年間 住宅保険 その他費用 毎月の費用 - 24時間サポート:880円
- 町内会費:500円
入居可能時期 2026年3月下旬 管理人 取引態様 仲介 物件No 設備・特徴 - エレベーター
- 駐輪場
- 日当り良好
- 室内洗濯機置場
- フローリング
- ウォークインクローゼット
- シューズボックス
- バス/トイレ別
- 温水洗浄トイレ
- 独立洗面台
- シャワー付洗面化粧台
- 浴室乾燥機
- 追い焚き風呂
- システムキッチン
- カウンターキッチン
- コンロ3口以上
- LPガス
- エアコン付
- オートロック
- モニタ付インターホン
- 宅配BOX
- 防犯カメラ
- インターネット利用料無料
- 角部屋
備考 初期費用クレジット払いOK ウォークインクローゼット付き インターネット無料 日当たり良好 新婚さんにおすすめ 学区色がついているアイコンをクリックすると、本物件までの道順を見ることができます。
主な周辺施設色がついているアイコンをクリックすると、本物件までの道順を見ることができます。
-
※連合隊は物件情報の精度向上に努めています:「物件情報に誤りがある」「成約済みである」などお気付きの点がございましたらこちらよりご連絡ください。
写真枚数:7枚
御笠の森小学校
ホームプラザナフコ南福岡店
マックスバリュ御笠川店
御陵中学校

お部屋探しは全国約450店舗数のミニミニで!賃貸・管理・売買と何なりと相談下さい。
安心の宅建を持った営業マンや女性営業がご案内させて頂きます♪土日祝日も営業中♪キッズルームもありお子様連れでも安心です♪賃貸物件の初期費用(礼金・手数料等)のカード利用も出来ます♪売買も相談下さい♪