アクタス南福岡グランパーク
ここに注目!JR南福岡駅まで徒歩4分!西鉄天神大牟田線も利用可能で、都心へのアクセスも軽快な「アクタス南福岡グランパーク」。2023年築の築浅分譲賃貸マンションです。 13階部分の南東向き住戸は、3面採光による明るいLDKが魅力。リビングには快適な床暖房を完備しており、足元から暖まります。 システムキッチンは食洗機・3口コンロ・カウンターを備え、お料理も捗ります。バス・トイレ別で追焚き機能、浴室乾燥機付き。独立洗面台や温水洗浄トイレなど、水回り設備も充実しています。 オートロック、宅配BOX、防犯カメラなどセキュリティ面も配慮。駅直結の商業施設やスーパー、コンビニが徒歩圏内にあり、日々の暮らしも便利です。 お問い合わせはミニミニ春日原店まで!
| 賃料・費用 |
13万円(+管理費等 5,000円)
敷なし礼26万円(2ヶ月)仲14万3,000円
保証金:なし
|
|---|---|
| 間取・専有 |
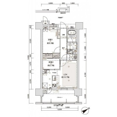
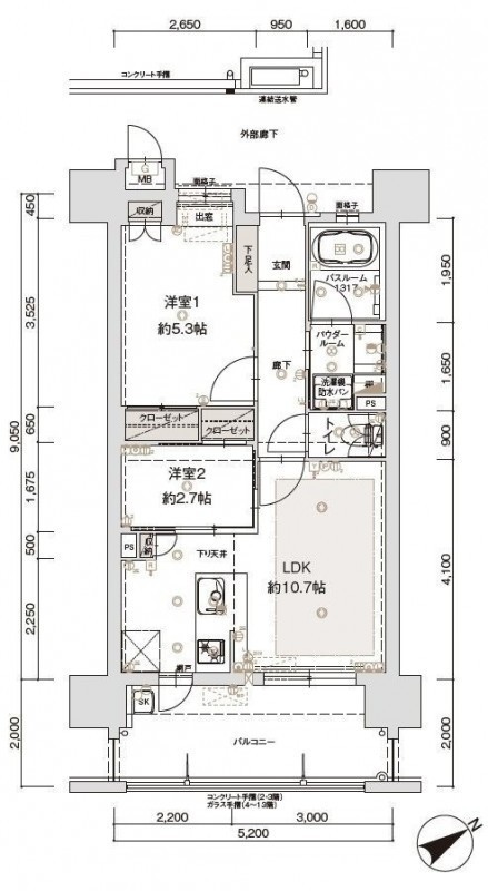
2LDK(45.18m²)└ LDK10.7帖 洋室5.3帖 洋室2.7帖
|
| 住所 | 福岡県福岡市博多区寿町2-4-40 |
| 交通 | 南福岡駅(徒歩4分)|桜並木駅(徒歩10分)|雑餉隈駅(徒歩10分)道順を見る |
| 築年月 | 築2年(2023年9月) |
| 駐車場 |
空き待ち (1万円/台)
機械式:地下1F 車両制限 全長5,050 全幅1,850 高さ1,550 重さ2,200 |
空室確認、見学、詳細を知りたい方はこちら!
お電話の際は「連合隊の物件」とお伝えください。
情報掲載期限:あと9日(更新日 2025/11/28)
- 物件写真・概要
- 周辺地図
-
空室確認、見学、詳細を知りたい方はこちら!
おすすめポイント
- バス/トイレ別
- オートロック
- 2階以上
- 都市ガス
- 室内洗濯機置場
- 駐車場あり
- エアコン付
- 独立洗面台
- 追い焚き風呂
- ペット相談可
- デザイナーズ
- 敷金・礼金0円
- 近くて便利!徒歩5分以内にある施設
- 3分
3分- 4分
4分- 3分
3分- 周辺施設を地図で確認
交通色がついているアイコンをクリックすると、本物件までの道順を見ることができます。
物件概要
所在階/建物の階建 13階(1302) / 地上14階建 総戸数 主要採光面 南東 構造 鉄筋コンクリート(RC)造 バルコニー あり契約期間 1年間 住宅保険 その他費用 毎月の費用 - 24時間管理費:880円
入居可能時期 即時 管理人 取引態様 仲介 物件No 設備・特徴 - 複数路線利用可
- 分譲タイプ
- エレベーター
- 室内洗濯機置場
- フローリング
- 3面採光
- シューズボックス
- バス/トイレ別
- 温水洗浄トイレ
- 独立洗面台
- シャワー付洗面化粧台
- 浴室乾燥機
- 追い焚き風呂
- コンロ3口以上
- システムキッチン
- カウンターキッチン
- 食器洗乾燥機
- 都市ガス
- 床暖房
- オートロック
- モニタ付インターホン
- 防犯カメラ
- 宅配BOX
- インターネット利用料無料
- BSアンテナ
- CSアンテナ
- 法人向け
- エアコン付
備考 分譲賃貸 法人向け 敷金0円 初期費用クレジット払いOK インターネット無料 学区色がついているアイコンをクリックすると、本物件までの道順を見ることができます。
主な周辺施設色がついているアイコンをクリックすると、本物件までの道順を見ることができます。
-
※連合隊は物件情報の精度向上に努めています:「物件情報に誤りがある」「成約済みである」などお気付きの点がございましたらこちらよりご連絡ください。
写真枚数:29枚
マルキョウ雑餉隈
JR南福岡駅
西鉄雑餉隈駅
ナフコ南福岡

お部屋探しは全国約450店舗数のミニミニで!賃貸・管理・売買と何なりと相談下さい。
安心の宅建を持った営業マンや女性営業がご案内させて頂きます♪土日祝日も営業中♪キッズルームもありお子様連れでも安心です♪賃貸物件の初期費用(礼金・手数料等)のカード利用も出来ます♪売買も相談下さい♪