アクアシティ 天神ノース
ここに注目!不在時に便利な宅配ボックス完備してます。 浴室乾燥機あり水回り設備充実してます。 ワンちゃん・ネコちゃんと一緒に暮らせます。 ペット飼育時は条件変更がございます。お問合せ下さい。 内覧をご希望の方はお気軽にお申し付けください! 福岡の物件全てご紹介出来ます!!何でもご相談下さい♪ ■ペット可物件のお問合せは株式会社コスモサービス092-474-3303へ■
| 賃料・費用 |
7万3,000円(+管理費等 1万6,000円)
敷なし礼14万6,000円(2ヶ月)仲8万300円
|
|---|---|
| 間取・専有 |
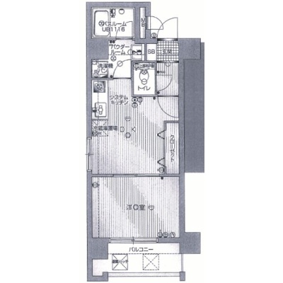
1DK(30.76m²)└ DK6帖 洋室4.5帖
|
| 住所 | 福岡県福岡市中央区長浜1-4-4 |
| 交通 | 赤坂駅(徒歩12分)|天神駅(徒歩12分)|西鉄福岡(天神)駅(徒歩15分)道順を見る |
| 築年月 | 築19年(2006年8月) |
| 駐車場 |
空き待ち
|
空室確認、見学、詳細を知りたい方はこちら!
お電話の際は「連合隊の物件」とお伝えください。
新着 情報掲載期限:あと27日(更新日 2026/4/14)
- 物件写真・概要
- 周辺地図
-
空室確認、見学、詳細を知りたい方はこちら!
おすすめポイント
- バス/トイレ別
- オートロック
- 2階以上
- 都市ガス
- 室内洗濯機置場
- 駐車場あり
- エアコン付
- 独立洗面台
- 追い焚き風呂
- ペット相談可
- デザイナーズ
- 敷金・礼金0円
- 近くて便利!徒歩5分以内にある施設
- 1分
1分- 4分
4分- 4分
4分- 周辺施設を地図で確認
交通色がついているアイコンをクリックすると、本物件までの道順を見ることができます。
物件概要
所在階/建物の階建 10階(1001) / 地上11階建 総戸数 主要採光面 北東 構造 鉄筋コンクリート(RC)造 バルコニー あり(4.68m²)契約期間 2年間 住宅保険 1万8,000円(2年間) その他費用 毎月の費用 - 水町費:3,300円
- 24時間管理費:1,650円
一時金 - 鍵交換代:2万7,500円
- 消毒施工料:2万2,000円
入居可能時期 相談 管理人 取引態様 仲介 物件No 中P 設備・特徴 - 分譲タイプ
- 角部屋
- フローリング
- 室内洗濯機置場
- 日当り良好
- エアコン付
- 24時間換気システム
- システムキッチン
- コンロ2口
- 宅配BOX
- エレベーター
- 浴室乾燥機
- バス/トイレ別
- ケーブルテレビ
- ブロードバンド回線(光ファイバー等の高速インターネット)
- 防犯カメラ
- シューズボックス
- 駐輪場
- LPガス
- ペット相談可
- 猫相談可
備考 ※資料と現況が異なる場合は現況を優先させて頂きます。 ※ペット飼育時は条件変更をご確認ください。 ペットの種類によっては飼育不可の場合がございますので、お問い合わせ下さい。 室内写真は他部屋のものになりますので、ご参考までにご覧ください(現状を優先します) 主な周辺施設色がついているアイコンをクリックすると、本物件までの道順を見ることができます。
-
※連合隊は物件情報の精度向上に努めています:「物件情報に誤りがある」「成約済みである」などお気付きの点がございましたらこちらよりご連絡ください。
写真枚数:13枚









ペット可物件の事ならコスモサービスへ!ワンちゃん、ねこちゃん、多頭飼育!何でもご相談ください!
福岡の物件全てご紹介出来ます!! 自社HP(https://www.cosmo-est.com/)にて物件情報随時更新中!! お電話は092-474-3303まで!