東公園台一丁目貸店舗
ここに注目!◆歯科医院の居抜き! ◆駐車場1台込み ◆定期借家5年 ◆使用面積132.95㎡ (約40.22坪) ※間取り・写真は現況優先となります。 内覧をご希望の方はお気軽にお申し付けください! 福岡の物件全てご紹介出来ます!!何でもご相談下さい♪
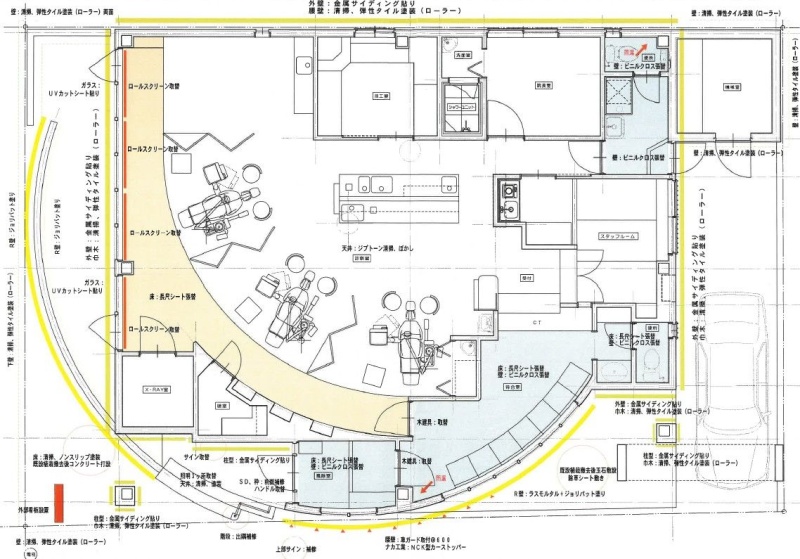
この物件は 歯科 の居抜き物件です。
現状の設備が残されたまま取引されるため、初期費用を抑え速やかに事業を開始できるメリットがあります。
この物件の契約期間は 5年間です。
定期借家物件は、賃貸借契約期間満了後、原則として契約の更新ができない物件です。再契約の可否については不動産会社にお問合せください。
| 賃料・費用 |
26万4,000円
(+管理費等 -円)
坪単価:約6,566円/坪
敷144万円礼なし仲26万4,000円
|
|---|---|
| 専有面積 | 132.95m² (40.21坪) |
| 住所 | 福岡県糟屋郡志免町東公園台1-5-27 |
| 交通 | 須恵駅(徒歩21分)|須恵中央駅(徒歩21分)道順を見る |
| 階/階建 | 1階建 |
| 築年月 | 築34年(1992年4月) |
| 駐車場 |
あり 駐車可能台数:1台
自走(平置きも含む) ※申し込み時要確認 |
空室確認、見学、詳細を知りたい方はこちら!
お電話の際は「連合隊の物件」とお伝えください。
情報掲載期限:あと19日(更新日 2026/3/23)
- 物件写真・概要
- 周辺地図
-
空室確認、見学、詳細を知りたい方はこちら!
おすすめポイント
- 駐車場あり
- 出店するなら…この業種がおすすめ!
- 飲食全般(重飲食含む)

- 喫茶・カフェ(軽飲食)

- バー・クラブ・スナック

- 小売・物販

- 美容・健康・介護

- 医療

- 教育・スクール

- 事務所

- アミューズメント

交通色がついているアイコンをクリックすると、本物件までの道順を見ることができます。
物件概要
所在階/建物の階建 地上1階建 主要採光面 構造 鉄骨造 間取り 契約期間 定期借家(5年間) 権利金 住宅保険 お問合せください 出店推奨業種 医療、教育・スクール、事務所 出店不可業種 居抜き情報 [歯科] の居抜き特記事項 ※申し込み時要確認 引渡し 相談 管理人 巡回 取引態様 仲介 物件No 志免店 設備・特徴 備考 定期借家契約5年 現状渡し 平置き駐車場1台(賃料込) 保証会社指定有(ニッポンインシュアまたはUSEN) ※資料と現況が異なる場合は現況を優先させて頂きます。 主な周辺施設色がついているアイコンをクリックすると、本物件までの道順を見ることができます。
-
※連合隊は物件情報の精度向上に努めています:「物件情報に誤りがある」「成約済みである」などお気付きの点がございましたらこちらよりご連絡ください。
写真枚数:18枚









ペット可物件の事ならコスモサービスへ!ワンちゃん、ねこちゃん、多頭飼育!何でもご相談ください!
福岡の物件全てご紹介出来ます!! 自社HP(https://www.cosmo-est.com/)にて物件情報随時更新中!! お電話は092-474-3303まで!