プロスペリタ中洲Ⅰ
ここに注目!◆櫛田神社前駅徒歩3分 ◆業種ご相談ください! ◆使用面積 97.93㎡ (約29.62坪) ※間取り・写真は現況優先となります。 福岡の物件全てご紹介出来ます!!何でもご相談下さい♪ 内覧をご希望の方はお気軽にお申し付けください!
| 賃料・費用 |
52万1,312円
(+管理費等 -円)
坪単価:約1.8万円/坪
敷なし礼なし仲52万1,312円
保証金:142万1,760円(償却区分:解約)/敷引・償却金:142万1,760円
|
|---|---|
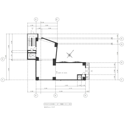
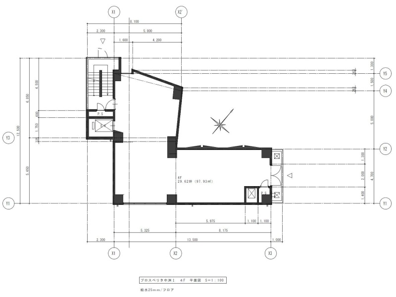
| 専有面積 | 97.93m² (29.62坪) |
| 住所 | 福岡県福岡市博多区中洲1-3-1 |
| 交通 | 櫛田神社前駅(徒歩3分)|祇園駅(徒歩8分)|中洲川端駅(徒歩8分)道順を見る |
| 階/階建 | 4階 / 9階建 |
| 築年月 | 築34年(1991年11月) |
| 駐車場 |
なし
|
空室確認、見学、詳細を知りたい方はこちら!
お電話の際は「連合隊の物件」とお伝えください。
情報掲載期限:あと28日(更新日 2026/3/18)
- 物件写真・概要
- 周辺地図
-
空室確認、見学、詳細を知りたい方はこちら!
おすすめポイント
- 駅徒歩3分以内
- 幹線道路沿い
- 敷金・礼金0円
- 出店するなら…この業種がおすすめ!
- 飲食全般(重飲食含む)

- 喫茶・カフェ(軽飲食)

- バー・クラブ・スナック

- 小売・物販

- 美容・健康・介護

- 医療

- 教育・スクール

- 事務所

- アミューズメント

交通色がついているアイコンをクリックすると、本物件までの道順を見ることができます。
物件概要
所在階/建物の階建 4階 / 地上9階建 主要採光面 構造 鉄筋コンクリート(RC)造 間取り 契約期間 1年間 権利金 住宅保険 お問合せください 出店推奨業種 飲食全般(重飲食含む)、バー・クラブ・スナック 出店不可業種 その他費用 毎月の費用 - 看板使用料:5,500円
- 自治会費:2,000円
一時金 - サポート24h:2万6,400円
- 鍵交換代:7万1,280円
引渡し 相談 管理人 巡回 取引態様 仲介 物件No 博多テ 設備・特徴 - 幹線道路沿い
備考 ※資料と現況が異なる場合は現況を優先させて頂きます。 主な周辺施設色がついているアイコンをクリックすると、本物件までの道順を見ることができます。
-
※連合隊は物件情報の精度向上に努めています:「物件情報に誤りがある」「成約済みである」などお気付きの点がございましたらこちらよりご連絡ください。
写真枚数:4枚









ペット可物件の事ならコスモサービスへ!ワンちゃん、ねこちゃん、多頭飼育!何でもご相談ください!
福岡の物件全てご紹介出来ます!! 自社HP(https://www.cosmo-est.com/)にて物件情報随時更新中!! お電話は092-474-3303まで!