MJR六本松
ここに注目!地下鉄七隈線「六本松」駅徒歩すぐ★ウォークインクローゼットあり収納たっぷりです! わんちゃん飼えます(^^♪ ペット飼育時は条件変更がございます。お問い合わせください。 内覧をご希望の方はお気軽にお申し付けください! 福岡の物件全てご紹介出来ます!!何でもご相談下さい♪ ■ペット可物件のお問合せは株式会社コスモサービス092-474-3303へ■
| 賃料・費用 |
26万円(+管理費等 なし)
敷26万円(1ヶ月)礼52万円(2ヶ月)仲28万6,000円
保証金:なし
|
|---|---|
| 間取・専有 |
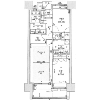
2LDK(69.7m²)└ LDK13帖 洋室7帖 洋室6帖 S2.2帖
|
| 住所 | 福岡県福岡市中央区六本松4-2-6 |
| 交通 | 六本松駅(徒歩3分)|別府駅(徒歩11分)|桜坂駅(徒歩14分)道順を見る |
| 築年月 | 築9年(2017年1月) |
| 駐車場 |
あり (無料) 駐車可能台数:1台
|
空室確認、見学、詳細を知りたい方はこちら!
お電話の際は「連合隊の物件」とお伝えください。
情報掲載期限:あと16日(更新日 2026/5/11)
- 物件写真・概要
- 周辺地図
-
空室確認、見学、詳細を知りたい方はこちら!
おすすめポイント
- バス/トイレ別
- オートロック
- 2階以上
- 都市ガス
- 室内洗濯機置場
- 駐車場あり
- エアコン付
- 独立洗面台
- 追い焚き風呂
- ペット相談可
- デザイナーズ
- 敷金・礼金0円
- 近くて便利!徒歩5分以内にある施設
- 5分
5分- 5分
5分- 5分
5分- 3分
3分- 周辺施設を地図で確認
交通色がついているアイコンをクリックすると、本物件までの道順を見ることができます。
物件概要
所在階/建物の階建 7階(725) / 地上14階建 総戸数 主要採光面 西 構造 鉄筋コンクリート(RC)造 バルコニー あり契約期間 2年間 住宅保険 2万円(2年間) その他費用 一時金 - 鍵交換料:4万7,000円
入居可能時期 相談 管理人 取引態様 仲介 物件No 中P 設備・特徴 - 分譲タイプ
- エレベーター
- 駐輪場
- 室内洗濯機置場
- フローリング
- ウォークインクローゼット
- シューズボックス
- バス/トイレ別
- 温水洗浄トイレ
- 独立洗面台
- 浴室乾燥機
- 追い焚き風呂
- 浴室に窓
- コンロ3口以上
- システムキッチン
- カウンターキッチン
- 食器洗乾燥機
- 浄水器
- 都市ガス
- オートロック
- モニタ付インターホン
- 宅配BOX
- ケーブルテレビ
- BSアンテナ
- CSアンテナ
- ペット相談可
- 床暖房
- 24時間換気システム
- 耐震
- シャワー付洗面化粧台
- ブロードバンド回線(光ファイバー等の高速インターネット)
備考 ※資料と現況が異なる場合は現況を優先させて頂きます。 ペットの種類によっては飼育不可の場合がございますので、お問い合わせ下さい。 ※ペット飼育時は条件変更をご確認ください。 室内写真は他部屋のものになりますので、ご参考までにご覧ください(現状を優先します) 学区色がついているアイコンをクリックすると、本物件までの道順を見ることができます。
主な周辺施設色がついているアイコンをクリックすると、本物件までの道順を見ることができます。
-
※連合隊は物件情報の精度向上に努めています:「物件情報に誤りがある」「成約済みである」などお気付きの点がございましたらこちらよりご連絡ください。
写真枚数:25枚









ペット可物件の事ならコスモサービスへ!ワンちゃん、ねこちゃん、多頭飼育!何でもご相談ください!
福岡の物件全てご紹介出来ます!! 自社HP(https://www.cosmo-est.com/)にて物件情報随時更新中!! お電話は092-474-3303まで!