MODERN EIGHT高宮lieto
ここに注目!◆新築物件◆広々とした2LDKは開放感あふれる間取りが魅力。 オートロックや防犯カメラ、モニター付きインターホンで、日々の安心もしっかりと守られます。 バス・トイレ別はもちろん、独立洗面台や浴室乾燥機、追い焚き機能付きで水回りも充実。 ワンちゃん・ネコちゃんと一緒に暮らせます。 ペット飼育時は条件変更がございます。お問合せ下さい。 内覧をご希望の方はお気軽にお申し付けください! 福岡の物件全てご紹介出来ます!!何でもご相談下さい♪
| 賃料・費用 |
12万7,000円(+管理費等 6,000円)
敷なし礼なし仲13万9,700円
|
|---|---|
| 間取・専有 |
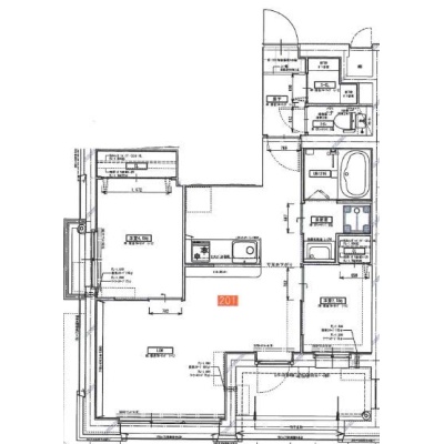
2LDK(46.29m²)└ LDK 洋室4帖 洋室2.5帖
|
| 住所 | 福岡県福岡市南区大池1-8-7 |
| 交通 | 高宮駅(徒歩18分)|大橋駅(徒歩24分)道順を見る |
| 築年月 | 新築(2026年3月) |
| 駐車場 |
あり (1万8,700円/台) 駐車可能台数:1台
|
空室確認、見学、詳細を知りたい方はこちら!
お電話の際は「連合隊の物件」とお伝えください。
情報掲載期限:あと12日(更新日 2026/4/3)
- 物件写真・概要
- 周辺地図
-
空室確認、見学、詳細を知りたい方はこちら!
おすすめポイント
- バス/トイレ別
- オートロック
- 2階以上
- 都市ガス
- 室内洗濯機置場
- 駐車場あり
- エアコン付
- 独立洗面台
- 追い焚き風呂
- ペット相談可
- デザイナーズ
- 敷金・礼金0円
- 近くて便利!徒歩5分以内にある施設
- 1分
1分- 1分
1分- 3分
3分- 4分
4分- 周辺施設を地図で確認
交通色がついているアイコンをクリックすると、本物件までの道順を見ることができます。
物件概要
所在階/建物の階建 6階(601) / 地上10階建 総戸数 主要採光面 構造 鉄筋コンクリート(RC)造 バルコニー あり契約期間 2年間 住宅保険 (2年間) その他費用 毎月の費用 - 自治会費:400円
- 安心サポート:880円
入居可能時期 相談 管理人 取引態様 仲介 物件No 南P 設備・特徴 - エアコン付
- コンロ3口以上
- フローリング
- エレベーター
- 追い焚き風呂
- 浴室乾燥機
- 温水洗浄トイレ
- バス/トイレ別
- 独立洗面台
- シャワー付洗面化粧台
- オートロック
- モニタ付インターホン
- 防犯カメラ
- シューズボックス
- 室内洗濯機置場
- 角部屋
- ペット相談可
- 猫相談可
- 納戸・トランクルーム
- ガスコンロ
備考 ※資料と現況が異なる場合は現況を優先させて頂きます。 ペットの種類によっては飼育不可の場合がございますので、お問い合わせ下さい。 ※ペット飼育時は条件変更をご確認ください。 室内写真は他部屋のものになりますので、ご参考までにご覧ください(現状を優先します) 学区色がついているアイコンをクリックすると、本物件までの道順を見ることができます。
主な周辺施設色がついているアイコンをクリックすると、本物件までの道順を見ることができます。
-
※連合隊は物件情報の精度向上に努めています:「物件情報に誤りがある」「成約済みである」などお気付きの点がございましたらこちらよりご連絡ください。
写真枚数:10枚









ペット可物件の事ならコスモサービスへ!ワンちゃん、ねこちゃん、多頭飼育!何でもご相談ください!
福岡の物件全てご紹介出来ます!! 自社HP(https://www.cosmo-est.com/)にて物件情報随時更新中!! お電話は092-474-3303まで!