日高ビル
ここに注目!◆東比恵駅徒歩5分 ◆飲食店不可 ◆使用面積 67.5㎡ ※間取り・写真は現況優先となります。 福岡の物件全てご紹介出来ます!!何でもご相談下さい♪ 内覧をご希望の方はお気軽にお申し付けください!
| 賃料・費用 |
9万9,000円
(+管理費等 1万1,000円)
坪単価:約4,851円/坪
敷54万円礼なし仲9万9,000円
|
|---|---|
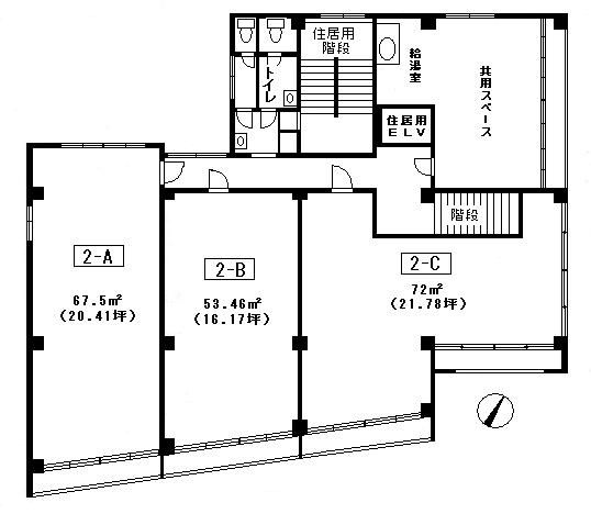
| 専有面積 | 67.5m² (20.41坪) |
| 住所 | 福岡県福岡市博多区比恵町4-17 |
| 交通 | 東比恵駅(徒歩5分)|博多駅(徒歩13分)|祇園駅(徒歩23分)道順を見る |
| 階/階建 | 2階 / 6階建 |
| 築年月 | 築55年(1970年9月) |
| 駐車場 |
なし
|
空室確認、見学、詳細を知りたい方はこちら!
お電話の際は「連合隊の物件」とお伝えください。
情報掲載期限:あと7日(更新日 2026/3/28)
- 物件写真・概要
- 周辺地図
-
空室確認、見学、詳細を知りたい方はこちら!
おすすめポイント
- 駅徒歩5分以内
交通色がついているアイコンをクリックすると、本物件までの道順を見ることができます。
- 東比恵駅福岡市営地下鉄空港線徒歩5分(約362m)
- 博多駅九州新幹線、JR博多南線、福北ゆたか線、福岡市営地下鉄空港線、福岡市営地下鉄七隈線、山陽新幹線、JR鹿児島本線徒歩13分(約984m)
- 祇園駅福岡市営地下鉄空港線徒歩23分(約1.9km)
物件概要
所在階/建物の階建 2階(2-A) / 地上6階建 主要採光面 構造 鉄筋コンクリート(RC)造 間取り バルコニー あり契約期間 2年間 権利金 住宅保険 お問合せください その他費用 毎月の費用 - 特別清掃費:2万2,000円
引渡し 相談(退去予定日:2026年04月30日) 管理人 巡回 取引態様 仲介 物件No 博事 設備・特徴 備考 記載内容と現状が異なる場合は現状優先となります。 主な周辺施設色がついているアイコンをクリックすると、本物件までの道順を見ることができます。
-
※連合隊は物件情報の精度向上に努めています:「物件情報に誤りがある」「成約済みである」などお気付きの点がございましたらこちらよりご連絡ください。
写真枚数:3枚









ペット可物件の事ならコスモサービスへ!ワンちゃん、ねこちゃん、多頭飼育!何でもご相談ください!
福岡の物件全てご紹介出来ます!! 自社HP(https://www.cosmo-est.com/)にて物件情報随時更新中!! お電話は092-474-3303まで!