デュオヴェール博多駅
ここに注目!【築浅物件】オートロック・TVモニタ付きインターホン・防犯カメラ等ありセキュリティ安心の設備充実♪ ワンちゃん・ネコちゃんと一緒に暮らせます(^^♪ ペット飼育時は条件変更がございます。お問合せ下さい。 ★福岡のペット可物件はコスモサービスまで★ 内覧をご希望の方はお気軽にお申し付けください! 福岡の物件全てご紹介出来ます!!何でもご相談下さい♪ ※室内と間取りは現況優先でお願い致します。
| 賃料・費用 |
21万円(+管理費等 -円)
敷なし礼42万円(2ヶ月)仲23万1,000円
保証金:なし
|
|---|---|
| 間取・専有 |
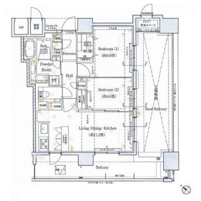
2LDK(52.76m²)└ LDK11.3帖 洋室4帖 洋室6帖
|
| 住所 | 福岡県福岡市博多区博多駅東1-5-15 |
| 交通 | 東比恵駅(徒歩16分)|祇園駅(徒歩11分)|博多駅(徒歩7分)道順を見る |
| 築年月 | 築2年(2023年6月) |
| 駐車場 |
空き待ち
|
空室確認、見学、詳細を知りたい方はこちら!
お電話の際は「連合隊の物件」とお伝えください。
情報掲載期限:あと6日(更新日 2026/4/23)
- 物件写真・概要
- 周辺地図
-
空室確認、見学、詳細を知りたい方はこちら!
おすすめポイント
- バス/トイレ別
- オートロック
- 2階以上
- 都市ガス
- 室内洗濯機置場
- 駐車場あり
- エアコン付
- 独立洗面台
- 追い焚き風呂
- ペット相談可
- デザイナーズ
- 敷金・礼金0円
- 近くて便利!徒歩5分以内にある施設
- 4分
4分- 5分
5分- 周辺施設を地図で確認
交通色がついているアイコンをクリックすると、本物件までの道順を見ることができます。
- 東比恵駅福岡市営地下鉄空港線徒歩16分(約1.3km)
- 祇園駅福岡市営地下鉄空港線徒歩11分(約843m)
- 博多駅九州新幹線、JR博多南線、福北ゆたか線、福岡市営地下鉄空港線、福岡市営地下鉄七隈線、山陽新幹線、JR鹿児島本線徒歩7分(約552m)
物件概要
所在階/建物の階建 13階 / 地上13階建 総戸数 主要採光面 南東 構造 鉄筋コンクリート(RC)造 バルコニー あり契約期間 2年間 更新料/更新手数料 1万1,000円 住宅保険 2万円(2年間) その他費用 一時金 - 室内消毒料:1万9,800円
入居可能時期 即時 管理人 日勤 取引態様 仲介 物件No 博P 設備・特徴 - 複数路線利用可
- 分譲タイプ
- エレベーター
- 駐輪場
- 日当り良好
- 室内洗濯機置場
- フローリング
- ウォークインクローゼット
- シューズボックス
- バス/トイレ別
- 温水洗浄トイレ
- 独立洗面台
- シャワー付洗面化粧台
- 浴室乾燥機
- 追い焚き風呂
- ガスコンロ
- コンロ3口以上
- システムキッチン
- カウンターキッチン
- 食器洗乾燥機
- 都市ガス
- エアコン付
- オートロック
- モニタ付インターホン
- 防犯カメラ
- 宅配BOX
- インターネット利用料無料
- BSアンテナ
- CSアンテナ
- ペット相談可
- 猫相談可
- 最上階
備考 記載内容と現状が異なる場合は現状優先となります。 ※ペット飼育時は条件変更をご確認ください。 ペットの種類によっては飼育不可の場合がございますので、お問い合わせ下さい。 室内写真は他部屋のものになりますので、ご参考までにご覧ください(現状を優先します) 学区色がついているアイコンをクリックすると、本物件までの道順を見ることができます。
主な周辺施設色がついているアイコンをクリックすると、本物件までの道順を見ることができます。
-
※連合隊は物件情報の精度向上に努めています:「物件情報に誤りがある」「成約済みである」などお気付きの点がございましたらこちらよりご連絡ください。
写真枚数:27枚









ペット可物件の事ならコスモサービスへ!ワンちゃん、ねこちゃん、多頭飼育!何でもご相談ください!
福岡の物件全てご紹介出来ます!! 自社HP(https://www.cosmo-est.com/)にて物件情報随時更新中!! お電話は092-474-3303まで!