グランフォーレ博多ウォーターフロント
ここに注目!【退去予定】地下鉄千代県庁口・呉服町駅まで歩いて行けます!築浅の単身向けペット可マンション!専門学校まで徒歩圏内です★学生さんぜひ(^^♪嬉しいインターネット無料物件★わんちゃん、ねこちゃんと一緒に暮らせます(^^♪(小型1匹まで)ペット飼育時は条件変更がございます。お問合せ下さい。 福岡の物件全てご紹介出来ます!!何でもご相談下さい♪ ★福岡のペット可物件はコスモサービスまで★※室内と間取りは現況優先でお願い致します。
| 賃料・費用 |
7万7,000円(+管理費等 3,000円)
敷なし礼7万7,000円(1ヶ月)仲8万4,700円
保証金:なし/敷引・償却金:なし
|
|---|---|
| 間取・専有 |
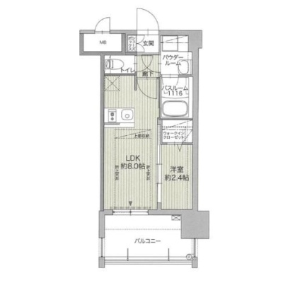
1LDK(27.37m²)└ LDK8帖 洋室2.4帖
|
| 住所 | 福岡県福岡市博多区石城町7-9 |
| 交通 | 博多駅(徒歩31分)|天神駅(徒歩24分)|中洲川端駅(徒歩19分)|千代県庁口駅(徒歩12分)|呉服町駅(徒歩13分)道順を見る |
| 築年月 | 築2年(2023年3月) |
| 駐車場 |
なし
|
空室確認、見学、詳細を知りたい方はこちら!
お電話の際は「連合隊の物件」とお伝えください。
情報掲載期限:あと30日(更新日 2026/2/14)
- 物件写真・概要
- 周辺地図
-
空室確認、見学、詳細を知りたい方はこちら!
おすすめポイント
- バス/トイレ別
- オートロック
- 2階以上
- 都市ガス
- 室内洗濯機置場
- 駐車場あり
- エアコン付
- 独立洗面台
- 追い焚き風呂
- ペット相談可
- デザイナーズ
- 敷金・礼金0円
- 近くて便利!徒歩5分以内にある施設
- 2分
2分- 2分
2分- 周辺施設を地図で確認
交通色がついているアイコンをクリックすると、本物件までの道順を見ることができます。
- 博多駅九州新幹線、JR博多南線、福北ゆたか線、福岡市営地下鉄空港線、福岡市営地下鉄七隈線、山陽新幹線、JR鹿児島本線徒歩31分(約2.5km)
- 天神駅福岡市営地下鉄空港線徒歩24分(約1.9km)
- 中洲川端駅福岡市営地下鉄箱崎線、福岡市営地下鉄空港線徒歩19分(約1.6km)
- 千代県庁口駅福岡市営地下鉄箱崎線徒歩12分(約923m)
- 呉服町駅福岡市営地下鉄箱崎線徒歩13分(約1.1km)
物件概要
所在階/建物の階建 8階(814) / 地上14階建 総戸数 主要採光面 北東 構造 鉄筋コンクリート(RC)造 バルコニー あり契約期間 2年間 更新料/更新手数料 なし / 1万1,000円 住宅保険 1万8,000円(2年間) その他費用 毎月の費用 - 町費:100円
- 月額保証料※家財保険・24時間サポート・継続保証料・口振手数料含む:2,290円
一時金 - 鍵交換料:3万3,000円
- 消毒代:1万3,200円
入居可能時期 相談 管理人 巡回 取引態様 仲介 物件No 博P 設備・特徴 - タイル貼り
- エレベーター
- 駐輪場
- 室内洗濯機置場
- フローリング
- ウォークインクローゼット
- バス/トイレ別
- 温水洗浄トイレ
- 独立洗面台
- シャワー付洗面化粧台
- 浴室乾燥機
- ガスコンロ
- コンロ2口
- システムキッチン
- LPガス
- エアコン付
- 24時間換気システム
- オートロック
- モニタ付インターホン
- 防犯カメラ
- 宅配BOX
- インターネット利用料無料
- ペット相談可
- 猫相談可
備考 ※掲載情報と物件の現況が異なる場合、現況を優先するものとします。 また、同一物件における他の部屋の写真を、イメージとして使用している場合があります。 ・建具、扉、フローリングカラー:ブラウン 主な周辺施設色がついているアイコンをクリックすると、本物件までの道順を見ることができます。
-
※連合隊は物件情報の精度向上に努めています:「物件情報に誤りがある」「成約済みである」などお気付きの点がございましたらこちらよりご連絡ください。
写真枚数:6枚









ペット可物件の事ならコスモサービスへ!ワンちゃん、ねこちゃん、多頭飼育!何でもご相談ください!
福岡の物件全てご紹介出来ます!! 自社HP(https://www.cosmo-est.com/)にて物件情報随時更新中!! お電話は092-474-3303まで!