アーバンパレス香椎照葉、南棟
ここに注目!◆眺望良好◆広々としたLDKが21.7帖!ご家族でのびのびと過ごしていただけます。 浴室乾燥機や追い焚き機能、床暖房も完備で、一年を通して快適。ウォークインクローゼットやシューズボックスで収納も豊富。 オートロック・TVモニタ付きインターホン・防犯カメラありセキュリティ安心の設備充実。 ワンちゃん・ネコちゃんと一緒に暮らせます。 ペット飼育時は条件変更がございます。お問合せ下さい。 内覧をご希望の方はお気軽にお申し付けください! 福岡の物件全てご紹介出来ます!!何でもご相談下さい♪
| 賃料・費用 |
22万円(+管理費等 1万円)
敷22万円(1ヶ月)礼44万円(2ヶ月)仲24万2,000円
|
|---|---|
| 間取・専有 |
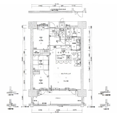
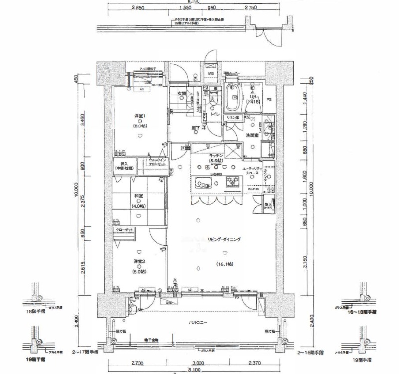
3LDK(81.71m²)└ LDK21.7帖 洋室6帖 洋室5帖 和室4帖
|
| 住所 | 福岡県福岡市東区香椎照葉3-1-13 |
| 交通 | 香椎花園前駅(徒歩20分)|西鉄香椎駅(徒歩24分)道順を見る |
| 築年月 | 築6年(2020年3月) |
| 駐車場 |
あり (1万円/台) 駐車可能台数:2台
2台分セット契約 |
空室確認、見学、詳細を知りたい方はこちら!
お電話の際は「連合隊の物件」とお伝えください。
情報掲載期限:あと16日(更新日 2026/3/26)
- 物件写真・概要
- 周辺地図
-
空室確認、見学、詳細を知りたい方はこちら!
おすすめポイント
- バス/トイレ別
- オートロック
- 2階以上
- 都市ガス
- 室内洗濯機置場
- 駐車2台以上可
- エアコン付
- 独立洗面台
- 追い焚き風呂
- ペット相談可
- デザイナーズ
- 敷金・礼金0円
- 近くて便利!徒歩5分以内にある施設
- 3分
3分- 周辺施設を地図で確認
交通色がついているアイコンをクリックすると、本物件までの道順を見ることができます。
物件概要
所在階/建物の階建 16階(1609) / 地上19階建 総戸数 主要採光面 南 構造 鉄筋コンクリート(RC)造 バルコニー あり(19.44m²)契約期間 2年間 住宅保険 1万5,000円(2年間) その他費用 毎月の費用 - 24時間管理費:1,100円
一時金 - 鍵交換代:3万3,000円
入居可能時期 相談 管理人 取引態様 仲介 物件No 東p 設備・特徴 - 分譲タイプ
- タイル貼り
- エレベーター
- 駐輪場
- タワーマンション
- 日当り良好
- 室内洗濯機置場
- フローリング
- 出窓
- ウォークインクローゼット
- シューズボックス
- バス/トイレ別
- 温水洗浄トイレ
- 独立洗面台
- シャワー付洗面化粧台
- 浴室乾燥機
- 追い焚き風呂
- コンロ2口
- システムキッチン
- カウンターキッチン
- 食器洗乾燥機
- 都市ガス
- 床暖房
- 24時間換気システム
- オートロック
- モニタ付インターホン
- 防犯カメラ
- 宅配BOX
- ペット相談可
- IHクッキングヒーター
備考 ※資料と現況が異なる場合は現況を優先させて頂きます。 ※ペット飼育時は条件変更をご確認ください。 ペットの種類によっては飼育不可の場合がございますので、お問い合わせ下さい。 室内写真は他部屋のものになりますので、ご参考までにご覧ください。 学区色がついているアイコンをクリックすると、本物件までの道順を見ることができます。
主な周辺施設色がついているアイコンをクリックすると、本物件までの道順を見ることができます。
-
※連合隊は物件情報の精度向上に努めています:「物件情報に誤りがある」「成約済みである」などお気付きの点がございましたらこちらよりご連絡ください。
写真枚数:15枚









ペット可物件の事ならコスモサービスへ!ワンちゃん、ねこちゃん、多頭飼育!何でもご相談ください!
福岡の物件全てご紹介出来ます!! 自社HP(https://www.cosmo-est.com/)にて物件情報随時更新中!! お電話は092-474-3303まで!