ISLANDCITY THE GARDEN V -Ⅱ
ここに注目!★照葉はばたき小学校校区★2025年3月築★広々83.5㎡の3LDK★ システムキッチンは3口ガスコンロと浄水器付きです。収納はウォークインクローゼット完備で、お洋服もすっきり片付きます。バス・トイレ別、独立洗面台、浴室乾燥機、温水洗浄トイレなど、水回りの設備も充実しており、毎日を快適に過ごしていただけます。大切なペットと一緒に暮らせるのも嬉しいポイントです(※種類により相談が必要です) ※間取り・写真は現況優先となります。 福岡の物件全てご紹介出来ます!!何でもご相談下さい♪ ★福岡のペット可物件はコスモサービスまで★
| 賃料・費用 |
22万円(+管理費等 1万円)
敷22万円(1ヶ月)礼44万円(2ヶ月)仲24万2,000円
|
|---|---|
| 間取・専有 |
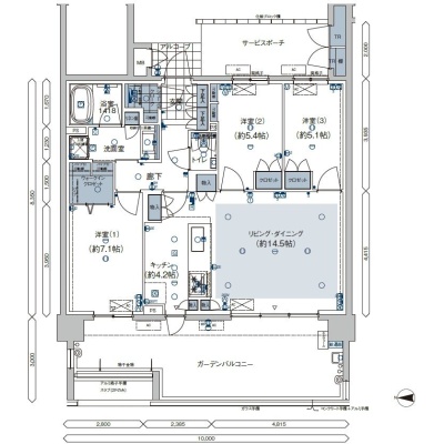
3LDK(83.5m²)└ LDK18.7帖 洋室7.1帖 洋室5.4帖 洋室5.1帖
|
| 住所 | 福岡県福岡市東区香椎照葉7丁目 14-3 |
| 交通 | 西鉄バス 「照葉北小学校」停(徒歩8分) |
| 築年月 | 新築(2025年3月) |
| 駐車場 |
あり (8,000円/台) 駐車可能台数:1台
|
空室確認、見学、詳細を知りたい方はこちら!
お電話の際は「連合隊の物件」とお伝えください。
情報掲載期限:あと13日(更新日 2026/1/20)
- 物件写真・概要
- 周辺地図
-
空室確認、見学、詳細を知りたい方はこちら!
おすすめポイント
- バス/トイレ別
- オートロック
- 2階以上
- 都市ガス
- 室内洗濯機置場
- 駐車場あり
- エアコン付
- 独立洗面台
- 追い焚き風呂
- ペット相談可
- デザイナーズ
- 敷金・礼金0円
交通
- 西鉄バス 「照葉北小学校」停徒歩8分(約776m)
物件概要
所在階/建物の階建 2階(202) / 地上6階建 総戸数 主要採光面 西 構造 鉄筋コンクリート(RC)造 バルコニー あり契約期間 2年間 住宅保険 3万円(2年間) 入居可能時期 相談(2026年2月1日以降) 管理人 日勤 取引態様 仲介 物件No 東P 設備・特徴 - 都市ガス
- ペット相談可
- ウォークインクローゼット
- バス/トイレ別
- エレベーター
- 温水洗浄トイレ
- 宅配BOX
- ディンプルキー
- システムキッチン
- 駐輪場
- 浴室乾燥機
- 24時間換気システム
- 室内洗濯機置場
- 浄水器
- フローリング
- コンロ3口以上
- ガスコンロ
- 独立洗面台
備考 ペットの種類によっては飼育不可の場合がございますので、お問い合わせ下さい。 ※資料と現況が異なる場合は現況を優先させて頂きます。 学区色がついているアイコンをクリックすると、本物件までの道順を見ることができます。
主な周辺施設色がついているアイコンをクリックすると、本物件までの道順を見ることができます。
-
※連合隊は物件情報の精度向上に努めています:「物件情報に誤りがある」「成約済みである」などお気付きの点がございましたらこちらよりご連絡ください。
写真枚数:26枚









ペット可物件の事ならコスモサービスへ!ワンちゃん、ねこちゃん、多頭飼育!何でもご相談ください!
福岡の物件全てご紹介出来ます!! 自社HP(https://www.cosmo-est.com/)にて物件情報随時更新中!! お電話は092-474-3303まで!