ラシュール・イン大橋Ⅱ
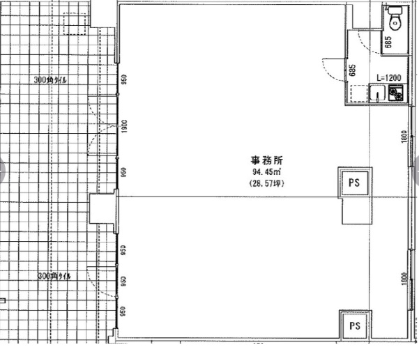
ここに注目!【新築】◆大橋駅徒歩圏内 ◆使用面積94.45㎡ ◆引き渡し予定2026年3月中旬 ※間取り・写真は現況優先となります。 福岡の物件全てご紹介出来ます!!何でもご相談下さい♪
| 賃料・費用 |
37万9,500円
(+管理費等 -円)
坪単価:約1.3万円/坪
敷172万5,000円礼なし仲37万9,500円
|
|---|---|
| 専有面積 | 94.45m² (28.57坪) |
| 住所 | 福岡県福岡市南区大橋3-31-20 |
| 交通 | 大橋駅(徒歩12分)|井尻駅(徒歩23分)道順を見る |
| 階/階建 | 1階 / 11階建 |
| 築年月 | 新築(2026年2月) |
| 駐車場 |
空き待ち (1万3,200円/台)
|
空室確認、見学、詳細を知りたい方はこちら!
お電話の際は「連合隊の物件」とお伝えください。
情報掲載期限:あと12日(更新日 2026/3/17)
- 物件写真・概要
- 周辺地図
-
空室確認、見学、詳細を知りたい方はこちら!
交通色がついているアイコンをクリックすると、本物件までの道順を見ることができます。
物件概要
所在階/建物の階建 1階(101) / 地上11階建 主要採光面 西 構造 鉄筋コンクリート(RC)造 間取り 契約期間 2年間 更新料/更新手数料 1万6,500円 権利金 住宅保険 お問合せください その他費用 毎月の費用 - 自治会費:300円
引渡し 相談(引き渡し予定2026年3月中旬) 管理人 巡回 取引態様 仲介 物件No 南事 設備・特徴 - 幹線道路沿い
- エレベーター
備考 ※資料と現況が異なる場合は現況を優先させて頂きます。 主な周辺施設色がついているアイコンをクリックすると、本物件までの道順を見ることができます。
-
※連合隊は物件情報の精度向上に努めています:「物件情報に誤りがある」「成約済みである」などお気付きの点がございましたらこちらよりご連絡ください。
写真枚数:2枚









ペット可物件の事ならコスモサービスへ!ワンちゃん、ねこちゃん、多頭飼育!何でもご相談ください!
福岡の物件全てご紹介出来ます!! 自社HP(https://www.cosmo-est.com/)にて物件情報随時更新中!! お電話は092-474-3303まで!