ENRICHE賀茂
ここに注目!2026年2月入居開始予定の新築物件!賀茂駅すぐ近く便利な環境です! 料理が楽しくなるシステムキッチンやカウンターキッチン、一日の疲れを癒す追い焚き機能付きバス、雨の日も安心の浴室乾燥機など、嬉しい設備が充実しています。 ワンちゃんと一緒に暮らせます。 ペット飼育時は条件変更がございます。お問合せ下さい。 内覧をご希望の方はお気軽にお申し付けください! 福岡の物件全てご紹介出来ます!!何でもご相談下さい♪
| 賃料・費用 |
13万2,000円(+管理費等 3,000円)
敷なし礼13万2,000円(1ヶ月)仲14万5,200円
|
|---|---|
| 間取・専有 |
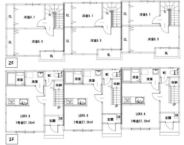
2LDK(57.39m²)└ LDK9.8帖 洋室6.9帖 洋室4.1帖
|
| 住所 | 福岡県福岡市早良区賀茂3-10 |
| 交通 | 賀茂駅(徒歩7分)|野芥駅(徒歩9分)道順を見る |
| 築年月 | 建築中(2026年2月完成予定) |
| 駐車場 |
あり 駐車可能台数:2台
|
空室確認、見学、詳細を知りたい方はこちら!
お電話の際は「連合隊の物件」とお伝えください。
新着 情報掲載期限:あと28日(更新日 2025/12/23)
- 物件写真・概要
- 周辺地図
-
空室確認、見学、詳細を知りたい方はこちら!
おすすめポイント
- バス/トイレ別
- オートロック
- 2階以上
- 都市ガス
- 室内洗濯機置場
- 駐車2台以上可
- エアコン付
- 独立洗面台
- 追い焚き風呂
- ペット相談可
- デザイナーズ
- 敷金・礼金0円
- 近くて便利!徒歩5分以内にある施設
- 4分
4分- 周辺施設を地図で確認
交通色がついているアイコンをクリックすると、本物件までの道順を見ることができます。
物件概要
所在階/建物の階建 1階(102) / 地上2階建 総戸数 主要採光面 構造 木造 契約期間 2年間 住宅保険 2万円(2年間) その他費用 毎月の費用 - 自治会費:500円
- 安心サポート:880円
一時金 - 消毒料:1万7,600円
- ハウスクリーニング代:13万2,000円
- ネット初期設定代:5,500円
入居可能時期 相談 管理人 取引態様 仲介 物件No 早P 設備・特徴 - システムキッチン
- カウンターキッチン
- 浴室乾燥機
- 追い焚き風呂
- 温水洗浄トイレ
- バス/トイレ別
- フローリング
- 室内洗濯機置場
- インターネット利用料無料
- モニタ付インターホン
- シューズボックス
- LPガス
- ペット相談可
- 猫相談可
備考 ※資料と現況が異なる場合は現況を優先させて頂きます。 ペットの種類によっては飼育不可の場合がございますので、お問い合わせ下さい。 ※ペット飼育時は条件変更をご確認ください。 室内写真は他部屋のものになりますので、ご参考までにご覧ください(現状を優先します) 学区色がついているアイコンをクリックすると、本物件までの道順を見ることができます。
主な周辺施設色がついているアイコンをクリックすると、本物件までの道順を見ることができます。
-
※連合隊は物件情報の精度向上に努めています:「物件情報に誤りがある」「成約済みである」などお気付きの点がございましたらこちらよりご連絡ください。
写真枚数:11枚









ペット可物件の事ならコスモサービスへ!ワンちゃん、ねこちゃん、多頭飼育!何でもご相談ください!
福岡の物件全てご紹介出来ます!! 自社HP(https://www.cosmo-est.com/)にて物件情報随時更新中!! お電話は092-474-3303まで!