冷泉町LYFART
ここに注目!【築浅】 ◆原則クリニックや医療関係、NG業種:テナント内同一業種(消化器内科、整形外科、画像診断クリニック、薬局) ◆祇園駅徒歩5分! ◆24時間セキュリティで安心! ◆定期借家5年 ※間取り・写真は現況優先となります。 内覧をご希望の方はお気軽にお申し付けください! 福岡の物件全てご紹介出来ます!!何でもご相談下さい♪
この物件の契約期間は 5年間です。
定期借家物件は、賃貸借契約期間満了後、原則として契約の更新ができない物件です。再契約の可否については不動産会社にお問合せください。
| 賃料・費用 |
57万2,000円
(+管理費等 -円)
坪単価:約1.5万円/坪
敷520万円礼なし仲57万2,000円
|
|---|---|
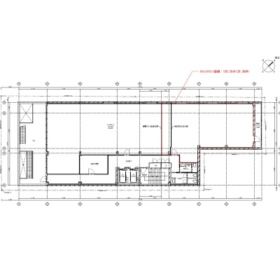
| 専有面積 | 130.2m² (39.38坪) |
| 住所 | 福岡県福岡市博多区冷泉町5-13 |
| 交通 | 祇園駅(徒歩5分)|櫛田神社前駅(徒歩6分)|呉服町駅(徒歩9分)道順を見る |
| 階/階建 | 3階 / 5階建 |
| 築年月 | 築1年(2024年6月) |
| 駐車場 |
なし
|
空室確認、見学、詳細を知りたい方はこちら!
お電話の際は「連合隊の物件」とお伝えください。
情報掲載期限:あと28日(更新日 2026/2/12)
- 物件写真・概要
- 周辺地図
-
空室確認、見学、詳細を知りたい方はこちら!
おすすめポイント
- 駅徒歩5分以内
- スケルトン
- 24時間セキュリティー
- 出店するなら…この業種がおすすめ!
- 飲食全般(重飲食含む)

- 喫茶・カフェ(軽飲食)

- バー・クラブ・スナック

- 小売・物販

- 美容・健康・介護

- 医療

- 教育・スクール

- 事務所

- アミューズメント

※出店不可の業種:飲食全般
交通色がついているアイコンをクリックすると、本物件までの道順を見ることができます。
物件概要
所在階/建物の階建 3階 / 地上5階建 主要採光面 構造 鉄筋コンクリート(RC)造 間取り 契約期間 定期借家(5年間) 権利金 住宅保険 お問合せください 出店推奨業種 美容・健康・介護、医療 出店不可業種 飲食全般 引渡し 相談 管理人 巡回 取引態様 仲介 物件No 博多テ 設備・特徴 - エレベーター
- 24時間セキュリティー
- スケルトン
備考 ※資料と現況が異なる場合は現況を優先させて頂きます。 定期借家契約5年:期間応相談 スケルトン 業種:原則クリニックや医療関係、NG業種:テナント内同一業種(消化器内科、整形外科、画像診断クリニック、薬局)、飲食業 保証会社指定有 主な周辺施設色がついているアイコンをクリックすると、本物件までの道順を見ることができます。
-
※連合隊は物件情報の精度向上に努めています:「物件情報に誤りがある」「成約済みである」などお気付きの点がございましたらこちらよりご連絡ください。
写真枚数:9枚









ペット可物件の事ならコスモサービスへ!ワンちゃん、ねこちゃん、多頭飼育!何でもご相談ください!
福岡の物件全てご紹介出来ます!! 自社HP(https://www.cosmo-est.com/)にて物件情報随時更新中!! お電話は092-474-3303まで!