NT-KIYOKAWA
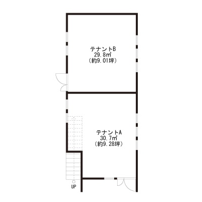
ここに注目!2026年2月下旬完成予定のテナント2区画募集中!飲食業OK!3月初旬より契約可能です!NG⇒焼肉、ラーメン、スナック(スナックは騒音問題懸念の為) 渡辺通駅徒歩圏内! 30.7㎡ (約9.29坪) ※間取り・写真は現況優先となります。 福岡の物件全てご紹介出来ます!!何でもご相談下さい♪
| 賃料・費用 |
18万4,000円
(+管理費等 1万1,000円)
坪単価:約2.0万円/坪
敷83万6,365円礼18万4,000円(1ヶ月)仲18万4,000円
|
|---|---|
| 専有面積 | 30.7m² (9.28坪) |
| 住所 | 福岡県福岡市中央区清川2-6-15 |
| 交通 | 渡辺通駅(徒歩10分)|薬院駅(徒歩13分)|天神南駅(徒歩17分)道順を見る |
| 階/階建 | 1階 / 3階建 |
| 築年月 | 建築中(2026年3月完成予定) |
| 駐車場 |
なし
|
空室確認、見学、詳細を知りたい方はこちら!
お電話の際は「連合隊の物件」とお伝えください。
情報掲載期限:あと15日(更新日 2026/1/30)
- 物件写真・概要
- 周辺地図
-
空室確認、見学、詳細を知りたい方はこちら!
おすすめポイント
- スケルトン
- 出店するなら…この業種がおすすめ!
- 飲食全般(重飲食含む)

- 喫茶・カフェ(軽飲食)

- バー・クラブ・スナック

- 小売・物販

- 美容・健康・介護

- 医療

- 教育・スクール

- 事務所

- アミューズメント

交通色がついているアイコンをクリックすると、本物件までの道順を見ることができます。
物件概要
所在階/建物の階建 1階((仮)A) / 地上3階建 主要採光面 構造 木造 間取り 契約期間 2年間 権利金 住宅保険 お問合せください 出店推奨業種 喫茶・カフェ(軽飲食) 出店不可業種 引渡し 相談 管理人 巡回 取引態様 仲介 物件No 中店 設備・特徴 - スケルトン
備考 ※資料と現況が異なる場合は現況を優先させて頂きます。 主な周辺施設色がついているアイコンをクリックすると、本物件までの道順を見ることができます。
-
※連合隊は物件情報の精度向上に努めています:「物件情報に誤りがある」「成約済みである」などお気付きの点がございましたらこちらよりご連絡ください。
写真枚数:5枚









ペット可物件の事ならコスモサービスへ!ワンちゃん、ねこちゃん、多頭飼育!何でもご相談ください!
福岡の物件全てご紹介出来ます!! 自社HP(https://www.cosmo-est.com/)にて物件情報随時更新中!! お電話は092-474-3303まで!