FERIX和白
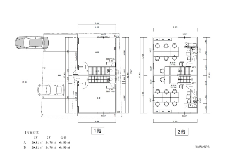
ここに注目!【新築】◆1階は倉庫仕様、2階は事務所仕様、飲食店不可 ◆駐車場2台つき! ◆使用面積 64.59㎡ (約19.54坪) ※間取り・写真は現況優先となります。 福岡の物件全てご紹介出来ます!!何でもご相談下さい♪
| 賃料・費用 |
24万2,000円
(+管理費等 -円)
坪単価:約1.2万円/坪
敷110万円礼24万2,000円(1ヶ月)仲24万2,000円
|
|---|---|
| 専有面積 | 64.59m² (19.53坪) |
| 住所 | 福岡県福岡市東区和白1 |
| 交通 | 唐の原駅(徒歩7分)|和白駅(徒歩14分)|九産大前駅(徒歩15分)道順を見る |
| 階/階建 | 2階 / 2階建 |
| 築年月 | 新築(2025年11月) |
| 駐車場 |
あり 駐車可能台数:2台
自走(平置きも含む)、前面2台分確保 ※申し込み時要確認 |
空室確認、見学、詳細を知りたい方はこちら!
お電話の際は「連合隊の物件」とお伝えください。
情報掲載期限:あと30日(更新日 2026/5/19)
- 物件写真・概要
- 周辺地図
-
空室確認、見学、詳細を知りたい方はこちら!
おすすめポイント
- 駐車2台以上可
- エアコン付
- 出店するなら…この業種がおすすめ!
- 飲食全般(重飲食含む)

- 喫茶・カフェ(軽飲食)

- バー・クラブ・スナック

- 小売・物販

- 美容・健康・介護

- 医療

- 教育・スクール

- 事務所

- アミューズメント

※出店不可の業種:飲食全般
交通色がついているアイコンをクリックすると、本物件までの道順を見ることができます。
物件概要
所在階/建物の階建 2階(A) / 地上2階建 主要採光面 構造 木造 間取り 契約期間 2年間 権利金 住宅保険 お問合せください 出店推奨業種 小売・物販、事務所 出店不可業種 飲食全般 引渡し 相談(2025年12月末頃) 管理人 巡回 取引態様 仲介 物件No 東事 設備・特徴 - エアコン付
備考 ※資料と現況が異なる場合は現況を優先させて頂きます。 主な周辺施設色がついているアイコンをクリックすると、本物件までの道順を見ることができます。
-
※連合隊は物件情報の精度向上に努めています:「物件情報に誤りがある」「成約済みである」などお気付きの点がございましたらこちらよりご連絡ください。
写真枚数:12枚









ペット可物件の事ならコスモサービスへ!ワンちゃん、ねこちゃん、多頭飼育!何でもご相談ください!
福岡の物件全てご紹介出来ます!! 自社HP(https://www.cosmo-est.com/)にて物件情報随時更新中!! お電話は092-474-3303まで!