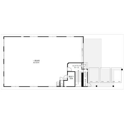
ここに注目!◆1棟貸し倉庫付事務所 ◆駐車場あり! ◆1階部分:216㎡、2階部分:245.35㎡ ※間取り・写真は現況優先となります。 福岡の物件全てご紹介出来ます!!何でもご相談下さい♪
| 賃料・費用 |
77万円
(+管理費等 -円)
坪単価:約5,518円/坪
敷420万円礼なし仲77万円
|
|---|---|
| 専有面積 | 461.35m² (139.55坪) |
| 住所 | 福岡県大野城市仲畑1-9-24 |
| 交通 | 笹原駅(徒歩30分)道順を見る |
| 階/階建 | 2階建 |
| 築年月 | 築42年(1983年3月) |
| 駐車場 |
あり
自走(平置きも含む)、屋根有り ※申し込み時要確認 |
空室確認、見学、詳細を知りたい方はこちら!
お電話の際は「連合隊の物件」とお伝えください。
情報掲載期限:あと18日(更新日 2025/11/27)
- 物件写真・概要
- 周辺地図
-
空室確認、見学、詳細を知りたい方はこちら!
おすすめポイント
- 駐車場あり
交通色がついているアイコンをクリックすると、本物件までの道順を見ることができます。
物件概要
建物の階建 地上2階建 総戸数 構造 鉄骨造 間取り 契約期間 2年間 権利金 住宅保険 お問合せください 引渡し 相談( 予定 2026年01月中旬) 管理人 巡回 取引態様 仲介 物件No 大野城 事倉 設備・特徴 備考 ※資料と現況が異なる場合は現況を優先させて頂きます。 ~初期費用~ ・鍵交換代:確認中 ・初回保証料:賃料合計の100% 770,000円 毎年保証料:77,000円 ・火災保険料:要見積り 主な周辺施設色がついているアイコンをクリックすると、本物件までの道順を見ることができます。
-
※連合隊は物件情報の精度向上に努めています:「物件情報に誤りがある」「成約済みである」などお気付きの点がございましたらこちらよりご連絡ください。
写真枚数:3枚









ペット可物件の事ならコスモサービスへ!ワンちゃん、ねこちゃん、多頭飼育!何でもご相談ください!
福岡の物件全てご紹介出来ます!! 自社HP(https://www.cosmo-est.com/)にて物件情報随時更新中!! お電話は092-474-3303まで!