パークフロント香椎照葉EAST
ここに注目!◆周辺には温浴施設「照葉スパリゾート」ショッピングモール「アイランドアイ」があります◆ 設備充実の分譲マンション!セキュリティ設備もしっかりしていて安心です。 ワンちゃんと一緒に暮らせます(^^♪ ペット飼育時は条件変更がございます。お問合せ下さい。 福岡の物件全てご紹介出来ます!!何でもご相談下さい♪ ※間取り・写真は現況優先となります。 内覧をご希望の方はお気軽にお申し付けください! ★福岡のペット可物件はコスモサービスまで★
| 賃料・費用 |
23万円(+管理費等 なし)
敷23万円(1ヶ月)礼46万円(2ヶ月)仲25万3,000円
|
|---|---|
| 間取・専有 |
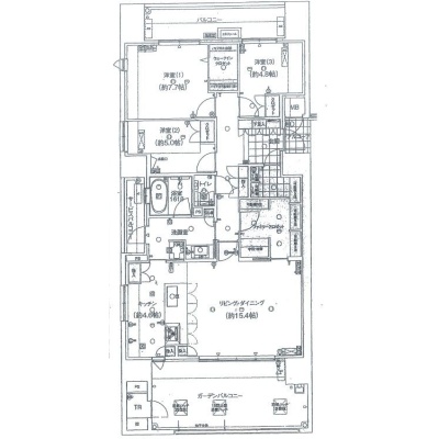
3SLDK(99.79m²)└ LDK20帖 洋室7.7帖 洋室5帖 洋室4.8帖
|
| 住所 | 福岡県福岡市東区香椎照葉4-4-20 |
| 交通 | 香椎花園前駅(徒歩27分)道順を見る |
| 築年月 | 築6年(2019年7月) |
| 駐車場 |
あり (1万3,000円/台) 駐車可能台数:1台
|
空室確認、見学、詳細を知りたい方はこちら!
お電話の際は「連合隊の物件」とお伝えください。
情報掲載期限:あと7日(更新日 2025/11/22)
- 物件写真・概要
- 周辺地図
-
空室確認、見学、詳細を知りたい方はこちら!
おすすめポイント
- バス/トイレ別
- オートロック
- 2階以上
- 都市ガス
- 室内洗濯機置場
- 駐車場あり
- エアコン付
- 独立洗面台
- 追い焚き風呂
- ペット相談可
- デザイナーズ
- 敷金・礼金0円
- 近くて便利!徒歩5分以内にある施設
- 3分
3分- 周辺施設を地図で確認
交通色がついているアイコンをクリックすると、本物件までの道順を見ることができます。
物件概要
所在階/建物の階建 15階 / 地上18階建 総戸数 主要採光面 南東 構造 鉄筋コンクリート(RC)造 バルコニー あり(35.77m²)- バルコニー2面以上
契約期間 2年間 更新料/更新手数料 3万3,000円 住宅保険 お問合せください その他費用 一時金 - 鍵交換料:3万3,000円
- 消毒料:1万6,500円
入居可能時期 相談 管理人 取引態様 仲介 物件No 東P 設備・特徴 - 分譲タイプ
- エレベーター
- 駐輪場
- バイク置き場
- タワーマンション
- 免震
- 日当り良好
- 室内洗濯機置場
- フローリング
- 出窓
- 納戸・トランクルーム
- ウォークインクローゼット
- シューズボックス
- バス/トイレ別
- 温水洗浄トイレ
- 独立洗面台
- 浴室乾燥機
- 追い焚き風呂
- 浴室暖房
- コンロ2口
- システムキッチン
- カウンターキッチン
- 食器洗乾燥機
- 浄水器
- 都市ガス
- 床暖房
- 24時間換気システム
- オートロック
- モニタ付インターホン
- 防犯カメラ
- 宅配BOX
- ケーブルテレビ
- ペット相談可
- 角部屋
- ブロードバンド回線(光ファイバー等の高速インターネット)
- インターネット利用料無料
- 猫相談可
備考 記載内容と現状が異なる場合は現状優先となります。 ※ペット飼育時は条件変更をご確認ください。 ペットの種類によっては飼育不可の場合がございますので、お問い合わせ下さい。 室内写真は他部屋のものになりますので、ご参考までにご覧ください(現状を優先します) 学区色がついているアイコンをクリックすると、本物件までの道順を見ることができます。
主な周辺施設色がついているアイコンをクリックすると、本物件までの道順を見ることができます。
-
※連合隊は物件情報の精度向上に努めています:「物件情報に誤りがある」「成約済みである」などお気付きの点がございましたらこちらよりご連絡ください。
写真枚数:14枚









ペット可物件の事ならコスモサービスへ!ワンちゃん、ねこちゃん、多頭飼育!何でもご相談ください!
福岡の物件全てご紹介出来ます!! 自社HP(https://www.cosmo-est.com/)にて物件情報随時更新中!! お電話は092-474-3303まで!