ヒフミビル
ここに注目!福岡市中央区鳥飼に位置する「ヒフミビル」1階の貸店舗・事務所。広々とした84.24m²の空間は、美容・健康・介護関連、事務所、倉庫など、様々なビジネスにご活用いただけます。 周辺にはコンビニ(徒歩1分)、スーパー(徒歩5分)、ドラッグストア(徒歩4分)が点在し、日々の業務をサポートする利便性の高い立地です。 初期費用を抑えたい方にも嬉しい**礼金ゼロ**!この機会に、新たなビジネスの拠点としてご検討ください。お問い合わせをお待ちしております。 ※間取り・写真は現況優先となります。 福岡の物件全てご紹介出来ます!!何でもご相談下さい♪
| 賃料・費用 |
33万6,300円
(+管理費等 -円)
坪単価:約1.3万円/坪
敷305万7,280円礼なし仲33万6,300円
|
|---|---|
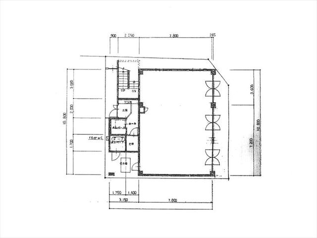
| 専有面積 | 84.24m² (25.48坪) |
| 住所 | 福岡県福岡市中央区鳥飼3-1-33 |
| 交通 | 西新駅(徒歩13分)|別府駅(徒歩14分)|唐人町駅(徒歩14分)道順を見る |
| 階/階建 | 1階 / 4階建 |
| 築年月 | 築30年(1995年9月) |
| 駐車場 |
空室確認、見学、詳細を知りたい方はこちら!
お電話の際は「連合隊の物件」とお伝えください。
情報掲載期限:あと22日(更新日 2025/12/9)
- 物件写真・概要
- 周辺地図
-
空室確認、見学、詳細を知りたい方はこちら!
- 出店するなら…この業種がおすすめ!
- 飲食全般(重飲食含む)

- 喫茶・カフェ(軽飲食)

- バー・クラブ・スナック

- 小売・物販

- 美容・健康・介護

- 医療

- 教育・スクール

- 事務所

- アミューズメント

その他…倉庫
交通色がついているアイコンをクリックすると、本物件までの道順を見ることができます。
物件概要
所在階/建物の階建 1階 / 地上4階建 主要採光面 東 構造 鉄筋コンクリート(RC)造 間取り 契約期間 2年間 権利金 住宅保険 (2年間) 出店推奨業種 美容・健康・介護、事務所、その他(倉庫) 出店不可業種 引渡し 相談 管理人 巡回 取引態様 仲介 物件No 中テ 設備・特徴 - その他インターネット
備考 ※資料と現況が異なる場合は現況を優先させて頂きます。 主な周辺施設色がついているアイコンをクリックすると、本物件までの道順を見ることができます。
-
※連合隊は物件情報の精度向上に努めています:「物件情報に誤りがある」「成約済みである」などお気付きの点がございましたらこちらよりご連絡ください。
写真枚数:2枚









ペット可物件の事ならコスモサービスへ!ワンちゃん、ねこちゃん、多頭飼育!何でもご相談ください!
福岡の物件全てご紹介出来ます!! 自社HP(https://www.cosmo-est.com/)にて物件情報随時更新中!! お電話は092-474-3303まで!