事務機ビル
ここに注目!◆博多駅から徒歩7分♪ヨドバシカメラの近くの大型オフィスビル!!交通機関の充実した好立地です(^^) ◆有料の貸会議室もあります ◆内装のうち一部または全部をそのままご利用頂けます ◆内装につき、ご要望部分について原状回復してお引き渡しします ※間取り・写真は現況優先となります。 内覧をご希望の方はお気軽にお申し付けください! 福岡の物件全てご紹介出来ます!!何でもご相談下さい♪
この物件の契約期間は 3年間です。
定期借家物件は、賃貸借契約期間満了後、原則として契約の更新ができない物件です。再契約の可否については不動産会社にお問合せください。
| 賃料・費用 |
112万7,500円
(+管理費等 22万5,500円)
坪単価:約1.4万円/坪
敷615万円礼なし仲112万7,500円
敷引・償却金:なし
|
|---|---|
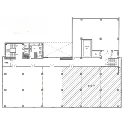
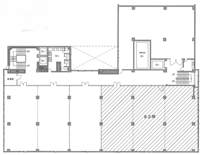
| 専有面積 | 271.08m² (82坪) |
| 住所 | 福岡県福岡市博多区博多駅南1-2-15 |
| 交通 | 博多駅(徒歩7分)|祇園駅(徒歩16分)道順を見る |
| 階/階建 | 5階 / 9階建(地下1階) |
| 築年月 | 築57年(1968年7月) |
| 駐車場 |
空室確認、見学、詳細を知りたい方はこちら!
お電話の際は「連合隊の物件」とお伝えください。
情報掲載期限:あと21日(更新日 2026/3/23)
- 物件写真・概要
- 周辺地図
-
空室確認、見学、詳細を知りたい方はこちら!
おすすめポイント
- 複数路線利用可
- OAフロア
- 24時間セキュリティー
- 出店するなら…この業種がおすすめ!
- 飲食全般(重飲食含む)

- 喫茶・カフェ(軽飲食)

- バー・クラブ・スナック

- 小売・物販

- 美容・健康・介護

- 医療

- 教育・スクール

- 事務所

- アミューズメント

交通色がついているアイコンをクリックすると、本物件までの道順を見ることができます。
物件概要
所在階/建物の階建 5階(4~6) / 地上9階 地下1階建 主要採光面 構造 鉄骨鉄筋コンクリート(SRC)造 間取り 契約期間 定期借家(3年間) 更新料/更新手数料 なし 権利金 住宅保険 出店推奨業種 美容・健康・介護、事務所 出店不可業種 引渡し 相談 管理人 巡回 取引態様 仲介 物件No 博事 設備・特徴 - 複数路線利用可
- エレベーター
- OAフロア
- 個別空調
- 24時間セキュリティー
- 男女別トイレ(共用部)
備考 記載内容と現状が異なる場合は現状優先となります。 主な周辺施設色がついているアイコンをクリックすると、本物件までの道順を見ることができます。
-
※連合隊は物件情報の精度向上に努めています:「物件情報に誤りがある」「成約済みである」などお気付きの点がございましたらこちらよりご連絡ください。
写真枚数:3枚









ペット可物件の事ならコスモサービスへ!ワンちゃん、ねこちゃん、多頭飼育!何でもご相談ください!
福岡の物件全てご紹介出来ます!! 自社HP(https://www.cosmo-est.com/)にて物件情報随時更新中!! お電話は092-474-3303まで!