若宮2丁目戸建て
ここに注目!◆室内は自由に変更していただいてOK◆自分の好きなようにDIYしてみませんか? ワンちゃんと一緒に暮らせます。ペット飼育時は条件変更がございます。お問合せ下さい。 □現状渡し □退去時の造作物の買取は不可 □ 内覧をご希望の方はお気軽にお申し付けください □ 福岡の物件全てご紹介出来ます!!何でもご相談下さい♪
| 賃料・費用 |
9万9,000円(+管理費等 なし)
敷なし礼9万9,000円(1ヶ月)仲10万8,900円
|
|---|---|
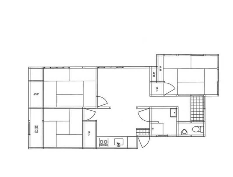
| 間取・専有 |
3DK(52.89m²)
|
| 住所 | 福岡県福岡市東区若宮2-5-38 |
| 交通 | 土井駅(徒歩24分)|名島駅(徒歩33分)道順を見る |
| 築年月 | 築51年(1975年1月) |
| 駐車場 |
あり 駐車可能台数:1台
|
空室確認、見学、詳細を知りたい方はこちら!
お電話の際は「連合隊の物件」とお伝えください。
情報掲載期限:あと26日(更新日 2026/3/31)
- 物件写真・概要
- 周辺地図
-
空室確認、見学、詳細を知りたい方はこちら!
おすすめポイント
- オール電化
- 南向き
- 角地
- 都市ガス
- 車庫あり
- 駐車場あり
- エアコン付
- 平屋
- 追い焚き風呂
- ペット相談可
- リフォーム済み
- 敷金・礼金0円
交通色がついているアイコンをクリックすると、本物件までの道順を見ることができます。
物件概要
建物の階建 地上1階建 主要採光面 構造 木造 契約期間 2年間 更新料/更新手数料 1万1,000円 住宅保険 1万7,000円(2年間) その他費用 毎月の費用 - 安心サポート:980円
一時金 - 鍵交換料:1万9,800円
入居可能時期 相談 管理人 取引態様 仲介 物件No 東p 設備・特徴 - バス/トイレ別
- 浴室に窓
- 都市ガス
- ペット相談可
- 事務所可
備考 ※資料と現況が異なる場合は現況を優先させて頂きます。 ペットの種類によっては飼育不可の場合がございますので、お問い合わせ下さい。 ※ペット飼育時は条件変更をご確認ください。 室内写真は他部屋のものになりますので、ご参考までにご覧ください(現状を優先します) 学区色がついているアイコンをクリックすると、本物件までの道順を見ることができます。
主な周辺施設色がついているアイコンをクリックすると、本物件までの道順を見ることができます。
-
※連合隊は物件情報の精度向上に努めています:「物件情報に誤りがある」「成約済みである」などお気付きの点がございましたらこちらよりご連絡ください。
写真枚数:12枚









ペット可物件の事ならコスモサービスへ!ワンちゃん、ねこちゃん、多頭飼育!何でもご相談ください!
福岡の物件全てご紹介出来ます!! 自社HP(https://www.cosmo-est.com/)にて物件情報随時更新中!! お電話は092-474-3303まで!