CREST西新
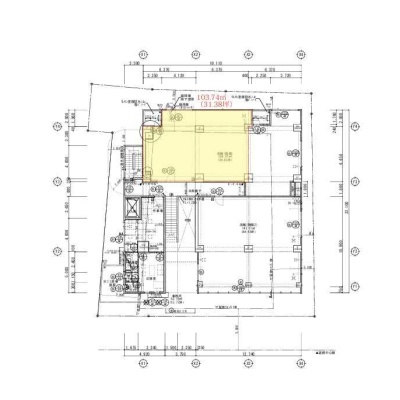
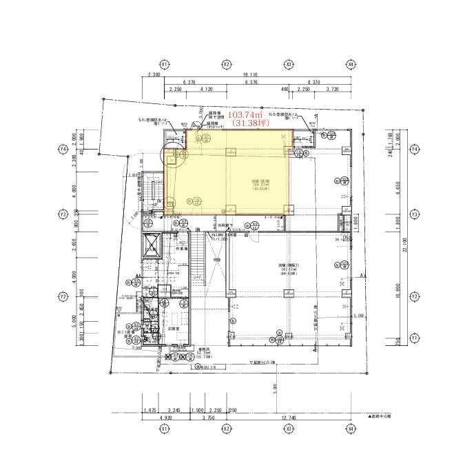
ここに注目!西新商店街中!2Fテナント103.74㎡ (約31.38坪)!スケルトン渡し!業種要相談(重飲食不可、軽飲食要相談)! 福岡市空港線西新駅 徒歩:3分! ※間取り・写真は現況優先となります。 内覧をご希望の方はお気軽にお申し付けください! 福岡の物件全てご紹介出来ます!!何でもご相談下さい♪
| 賃料・費用 |
69万360円
(+管理費等 なし)
坪単価:約2.2万円/坪
敷627万6,000円礼なし仲69万360円
保証金:なし
|
|---|---|
| 専有面積 | 103.74m² (31.38坪) |
| 住所 | 福岡県福岡市早良区西新4-9-16 |
| 交通 | 唐人町駅(徒歩18分)|藤崎駅(徒歩13分)|西新駅(徒歩3分)道順を見る |
| 階/階建 | 2階 / 13階建 |
| 築年月 | 築1年(2025年2月) |
| 駐車場 |
なし
|
空室確認、見学、詳細を知りたい方はこちら!
お電話の際は「連合隊の物件」とお伝えください。
情報掲載期限:あと25日(更新日 2026/5/14)
- 物件写真・概要
- 周辺地図
-
空室確認、見学、詳細を知りたい方はこちら!
おすすめポイント
- 駅徒歩3分以内
- 商店街に面す
- スケルトン
- 光ファイバー
- 出店するなら…この業種がおすすめ!
- 飲食全般(重飲食含む)

- 喫茶・カフェ(軽飲食)

- バー・クラブ・スナック

- 小売・物販

- 美容・健康・介護

- 医療

- 教育・スクール

- 事務所

- アミューズメント

※出店不可の業種:重飲食(軽飲食は相談可)
交通色がついているアイコンをクリックすると、本物件までの道順を見ることができます。
物件概要
所在階/建物の階建 2階(2B) / 地上13階建 主要採光面 構造 鉄筋コンクリート(RC)造 間取り 契約期間 2年間 権利金 住宅保険 お問合せください 出店推奨業種 喫茶・カフェ(軽飲食)、小売・物販、事務所 出店不可業種 重飲食(軽飲食は相談可) その他費用 毎月の費用 - 自治会費:6,000円
一時金 - 町内会入会金:1万円
引渡し 相談 管理人 巡回 取引態様 仲介 物件No 早良テ 設備・特徴 - 商店街に面す
- ブロードバンド回線(光ファイバー等の高速インターネット)
- スケルトン
- ガス設備
備考 ※資料と現況が異なる場合は現況を優先させて頂きます。 町内会加入必須 入会金 10,000円 月会費 6,000円 主な周辺施設色がついているアイコンをクリックすると、本物件までの道順を見ることができます。
-
※連合隊は物件情報の精度向上に努めています:「物件情報に誤りがある」「成約済みである」などお気付きの点がございましたらこちらよりご連絡ください。
写真枚数:4枚









ペット可物件の事ならコスモサービスへ!ワンちゃん、ねこちゃん、多頭飼育!何でもご相談ください!
福岡の物件全てご紹介出来ます!! 自社HP(https://www.cosmo-est.com/)にて物件情報随時更新中!! お電話は092-474-3303まで!