AIFLAT博多祇園
ここに注目!福岡市博多区祇園町に誕生する、新築高級賃貸マンション。 福岡市地下鉄空港線「祇園」駅 徒歩3分、七隈線「櫛田神社前」駅も徒歩5分と利便性良好です。 博多駅や天神エリアへのアクセスも良好で、通勤・通学に便利です。 ワンちゃん・ネコちゃんと一緒に暮らせます。 ペット飼育時は条件変更がございます。お問合せ下さい。 福岡の物件全てご紹介出来ます!!何でもご相談下さい♪ 内覧をご希望の方はお気軽にお申し付けください! ★福岡のペット可物件はコスモサービスまで★
| 賃料・費用 |
16万9,000円(+管理費等 1万円)
敷なし礼33万8,000円(2ヶ月)仲18万5,900円
|
|---|---|
| 間取・専有 |
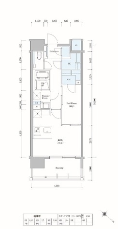
1LDK(45.42m²)└ LDK10.2帖 洋室4帖
|
| 住所 | 福岡県福岡市博多区祇園町4-71 |
| 交通 | 祇園駅(徒歩4分)|櫛田神社前駅(徒歩6分)|中洲川端駅(徒歩11分)道順を見る |
| 築年月 | 新築(2025年10月) |
| 駐車場 |
あり (2万7,500円/台)
|
空室確認、見学、詳細を知りたい方はこちら!
お電話の際は「連合隊の物件」とお伝えください。
情報掲載期限:あと27日(更新日 2025/12/18)
- 物件写真・概要
- 周辺地図
-
空室確認、見学、詳細を知りたい方はこちら!
おすすめポイント
- バス/トイレ別
- オートロック
- 2階以上
- 都市ガス
- 室内洗濯機置場
- 駐車場あり
- エアコン付
- 独立洗面台
- 追い焚き風呂
- ペット相談可
- デザイナーズ
- 敷金・礼金0円
- 近くて便利!徒歩5分以内にある施設
- 2分
2分- 5分
5分- 3分
3分- 周辺施設を地図で確認
交通色がついているアイコンをクリックすると、本物件までの道順を見ることができます。
物件概要
所在階/建物の階建 11階(1102) / 地上14階建 総戸数 主要採光面 北東 構造 鉄筋コンクリート(RC)造 バルコニー あり契約期間 2年間 住宅保険 2万円(2年間) 入居可能時期 相談 管理人 取引態様 仲介 物件No 博P 設備・特徴 - 都市ガス
- エアコン付
- システムキッチン
- カウンターキッチン
- 照明器具付
- フローリング
- コンロ2口
- 宅配BOX
- 追い焚き風呂
- 温水洗浄トイレ
- バス/トイレ別
- 独立洗面台
- シャワー付洗面化粧台
- 室内洗濯機置場
- インターネット利用料無料
- オートロック
- モニタ付インターホン
- 防犯カメラ
- ウォークインクローゼット
- ペット相談可
- 猫相談可
- シューズボックス
- 駐輪場
備考 ※資料と現況が異なる場合は現況を優先させて頂きます。 ペットの種類によっては飼育不可の場合がございますので、お問い合わせ下さい。 ※ペット飼育時は条件変更をご確認ください。 室内写真は他部屋のものになりますので、ご参考までにご覧ください(現状を優先します) 学区色がついているアイコンをクリックすると、本物件までの道順を見ることができます。
主な周辺施設色がついているアイコンをクリックすると、本物件までの道順を見ることができます。
-
※連合隊は物件情報の精度向上に努めています:「物件情報に誤りがある」「成約済みである」などお気付きの点がございましたらこちらよりご連絡ください。
写真枚数:10枚









ペット可物件の事ならコスモサービスへ!ワンちゃん、ねこちゃん、多頭飼育!何でもご相談ください!
福岡の物件全てご紹介出来ます!! 自社HP(https://www.cosmo-est.com/)にて物件情報随時更新中!! お電話は092-474-3303まで!