テングッドグラン大濠
ここに注目!地下鉄空港線「唐人駅」まで徒歩約5分!大濠公園も近い閑静な住宅街です。 ワンちゃんと一緒に暮らせます(^^♪ ペット飼育時は条件変更がございます。お問合せ下さい。 内覧をご希望の方はお気軽にお申し付けください! ★福岡のペット可物件はコスモサービスまで★ 福岡の物件全てご紹介出来ます!!何でもご相談下さい♪ ※室内と間取りは現況優先でお願い致します。
| 賃料・費用 |
36万6,000円(+管理費等 1万円)
敷なし礼73万2,000円(2ヶ月)仲40万2,600円
保証金:なし
|
|---|---|
| 間取・専有 |
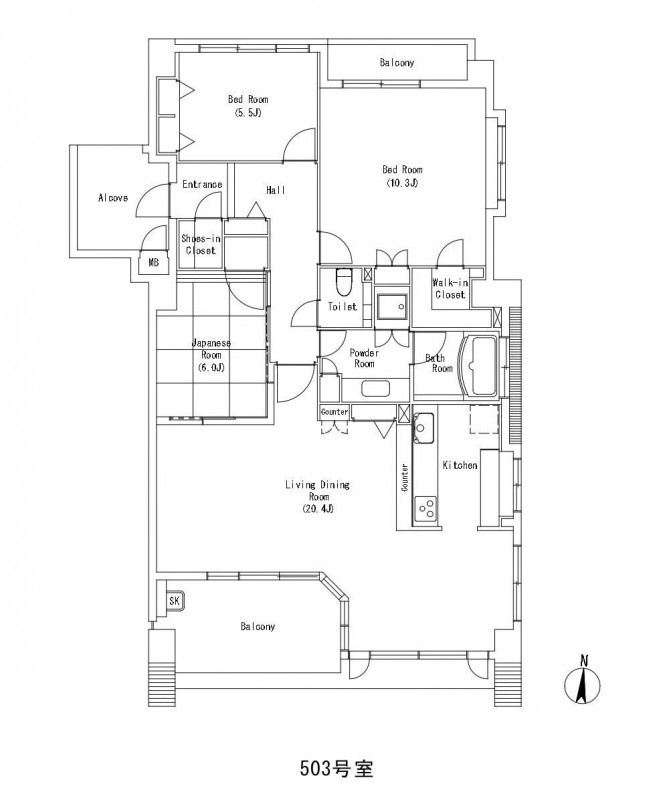
3LDK(104.32m²)└ LDK20.4帖 洋室10.3帖 洋室5.5帖 和室6帖
|
| 住所 | 福岡県福岡市中央区大濠2-13-32 |
| 交通 | 西新駅(徒歩17分)|大濠公園駅(徒歩11分)|唐人町駅(徒歩5分)道順を見る |
| 築年月 | 築18年(2008年4月) |
| 駐車場 |
あり (2万9,700円/台) 駐車可能台数:1台
※駐車場敷金2ヶ月 59,400円 |
空室確認、見学、詳細を知りたい方はこちら!
お電話の際は「連合隊の物件」とお伝えください。
情報掲載期限:あと11日(更新日 2026/4/27)
- 物件写真・概要
- 周辺地図
-
空室確認、見学、詳細を知りたい方はこちら!
おすすめポイント
- バス/トイレ別
- オートロック
- 2階以上
- 都市ガス
- 室内洗濯機置場
- 駐車場あり
- エアコン付
- 独立洗面台
- 追い焚き風呂
- ペット相談可
- デザイナーズ
- 敷金・礼金0円
- 近くて便利!徒歩5分以内にある施設
- 4分
4分- 4分
4分- 5分
5分- 周辺施設を地図で確認
交通色がついているアイコンをクリックすると、本物件までの道順を見ることができます。
物件概要
所在階/建物の階建 5階(503) / 地上7階建 総戸数 主要採光面 南 構造 鉄骨鉄筋コンクリート(SRC)造 バルコニー あり- バルコニー2面以上
契約期間 2年間 住宅保険 2万4,000円(2年間) その他費用 一時金 - 退去時清掃料:7万7,000円
- 鍵交換料:2万7,500円
入居可能時期 相談 管理人 巡回 取引態様 仲介 物件No 中P 設備・特徴 - 複数路線利用可
- 分譲タイプ
- エレベーター
- 駐輪場
- 角部屋
- 日当り良好
- 室内洗濯機置場
- フローリング
- ウォークインクローゼット
- シューズボックス
- 全居室収納あり
- バス/トイレ別
- 温水洗浄トイレ
- 独立洗面台
- シャワー付洗面化粧台
- 浴室乾燥機
- 追い焚き風呂
- 浴室暖房
- 浴室に窓
- ガスコンロ
- コンロ3口以上
- システムキッチン
- 食器洗乾燥機
- 都市ガス
- エアコン付
- 床暖房
- 24時間換気システム
- オートロック
- モニタ付インターホン
- 防犯カメラ
- 宅配BOX
- その他インターネット
- ペット相談可
- ビルトインエアコン
備考 記載内容と現状が異なる場合は現状優先となります。 ※ペット飼育時は条件変更をご確認ください。 ペットの種類によっては飼育不可の場合がございますので、お問い合わせ下さい。 室内写真は他部屋のものになりますので、ご参考までにご覧ください。 学区色がついているアイコンをクリックすると、本物件までの道順を見ることができます。
主な周辺施設色がついているアイコンをクリックすると、本物件までの道順を見ることができます。
-
※連合隊は物件情報の精度向上に努めています:「物件情報に誤りがある」「成約済みである」などお気付きの点がございましたらこちらよりご連絡ください。
写真枚数:26枚









ペット可物件の事ならコスモサービスへ!ワンちゃん、ねこちゃん、多頭飼育!何でもご相談ください!
福岡の物件全てご紹介出来ます!! 自社HP(https://www.cosmo-est.com/)にて物件情報随時更新中!! お電話は092-474-3303まで!