THE STAGE ON THE BEACH
ここに注目!事務所、カフェ、レストランなど ☆オーシャンビュー ☆近隣にはビートリゾート関連の店舗点在 ☆津屋崎海水浴場直結 ☆業務用エアコンやキッチン、トイレ(男女別)、換気設備、消防設備あり ☆BBQ可 ☆駐車場付きです ※間取り・写真は現況優先となります。 内覧をご希望の方はお気軽にお申し付けください! 福岡の物件全てご紹介出来ます!!何でもご相談下さい♪
| 賃料・費用 |
110万円
(+管理費等 -円)
坪単価:約1.9万円/坪
敷なし礼なし仲110万円
保証金:500万円(償却区分:解約)/敷引・償却金:200万円
|
|---|---|
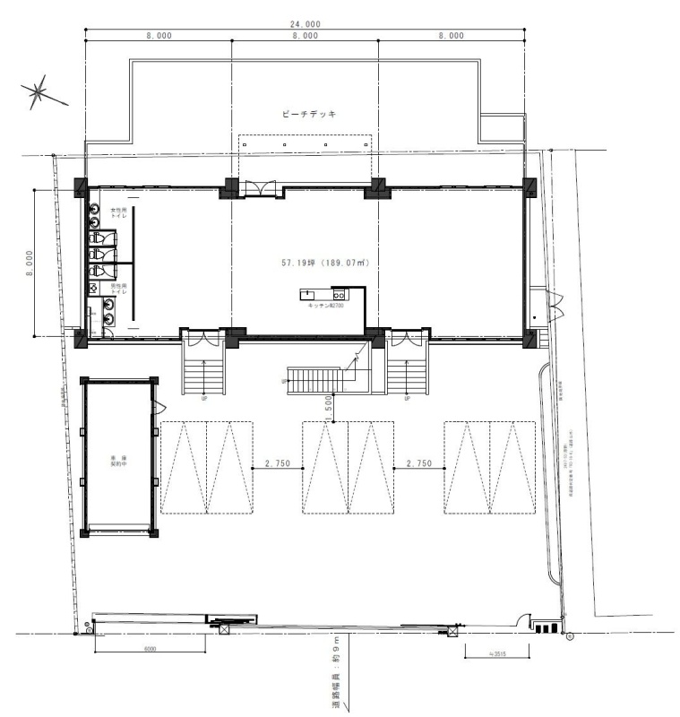
| 専有面積 | 189.07m² (57.19坪) |
| 住所 | 福岡県福津市津屋崎1-36-12 |
| 交通 | |
| 階/階建 | 1階 / 2階建(地下1階) |
| 築年月 | 築2年(2023年4月) |
| 駐車場 |
あり
3台以上無料、自走(平置きも含む)、屋根無し ※申し込み時要確認 |
空室確認、見学、詳細を知りたい方はこちら!
お電話の際は「連合隊の物件」とお伝えください。
情報掲載期限:あと29日(更新日 2025/12/19)
- 物件写真・概要
- 周辺地図
-
空室確認、見学、詳細を知りたい方はこちら!
おすすめポイント
- 駐車場あり
- スケルトン
- 男女別トイレ
- エアコン付
- 敷金・礼金0円
- 出店するなら…この業種がおすすめ!
- 飲食全般(重飲食含む)

- 喫茶・カフェ(軽飲食)

- バー・クラブ・スナック

- 小売・物販

- 美容・健康・介護

- 医療

- 教育・スクール

- 事務所

- アミューズメント

物件概要
所在階/建物の階建 1階 / 地上2階 地下1階建 主要採光面 構造 鉄筋コンクリート(RC)造 間取り バルコニー あり契約期間 1年間 権利金 住宅保険 お問合せください 出店推奨業種 喫茶・カフェ(軽飲食)、事務所 出店不可業種 引渡し 相談 管理人 巡回 取引態様 仲介 物件No 福津テ 設備・特徴 - エアコン付
- スケルトン
- 男女別トイレ
- ビルトインエアコン
備考 ※資料と現況が異なる場合は現況を優先させて頂きます。 主な周辺施設色がついているアイコンをクリックすると、本物件までの道順を見ることができます。
-
※連合隊は物件情報の精度向上に努めています:「物件情報に誤りがある」「成約済みである」などお気付きの点がございましたらこちらよりご連絡ください。
写真枚数:10枚









ペット可物件の事ならコスモサービスへ!ワンちゃん、ねこちゃん、多頭飼育!何でもご相談ください!
福岡の物件全てご紹介出来ます!! 自社HP(https://www.cosmo-est.com/)にて物件情報随時更新中!! お電話は092-474-3303まで!