OFFICE MAWATARI(仮)
ここに注目!【新築】春日横断通りに面した軽飲食可物件です。カフェや美容室、雑貨屋、クリーニング店などいかがでしょうか? ◆飲食店相談可能、業種ご相談ください! ◆駐車場契約必須 ◆スケルトン渡し ◆使用面積 53.9㎡ (約16.30坪) ※間取り・写真は現況優先となります。 福岡の物件全てご紹介出来ます!!何でもご相談下さい♪
| 賃料・費用 |
16万5,000円
(+管理費等 5,500円)
坪単価:約1.0万円/坪
敷なし礼33万円(2ヶ月)仲16万5,000円
保証金:なし
|
|---|---|
| 専有面積 | 53.9m² (16.3坪) |
| 住所 | 福岡県春日市小倉2-151-1 |
| 交通 | 春日駅(徒歩24分) |
| 階/階建 | 1階 / 2階建 |
| 築年月 | 新築(2025年7月) |
| 駐車場 |
あり (6,600円/台)
自走(平置きも含む)駐車場契約必須。各戸1区画のみ契約可。 ※申し込み時要確認 |
空室確認、見学、詳細を知りたい方はこちら!
お電話の際は「連合隊の物件」とお伝えください。
情報掲載期限:あと5日(更新日 2025/11/28)
- 物件写真・概要
- 周辺地図
-
空室確認、見学、詳細を知りたい方はこちら!
おすすめポイント
- 駐車場あり
- スケルトン
- 出店するなら…この業種がおすすめ!
- 飲食全般(重飲食含む)

- 喫茶・カフェ(軽飲食)

- バー・クラブ・スナック

- 小売・物販

- 美容・健康・介護

- 医療

- 教育・スクール

- 事務所

- アミューズメント

交通色がついているアイコンをクリックすると、本物件までの道順を見ることができます。
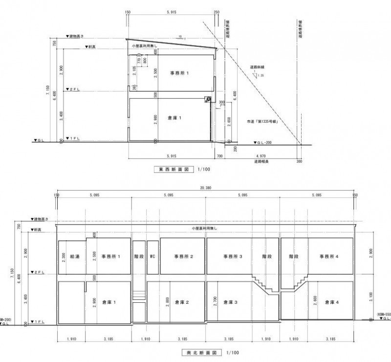
物件概要
所在階/建物の階建 1階(103) / 地上2階建 主要採光面 構造 木造 間取り ワンルーム 契約期間 2年間 権利金 住宅保険 お問合せください 出店推奨業種 喫茶・カフェ(軽飲食)、小売・物販、美容・健康・介護 出店不可業種 引渡し 相談(2025年08月20日以降) 管理人 巡回 取引態様 仲介 物件No 春日テ 設備・特徴 - スケルトン
備考 ※資料と現況が異なる場合は現況を優先させて頂きます。 主な周辺施設色がついているアイコンをクリックすると、本物件までの道順を見ることができます。
-
※連合隊は物件情報の精度向上に努めています:「物件情報に誤りがある」「成約済みである」などお気付きの点がございましたらこちらよりご連絡ください。
写真枚数:5枚









ペット可物件の事ならコスモサービスへ!ワンちゃん、ねこちゃん、多頭飼育!何でもご相談ください!
福岡の物件全てご紹介出来ます!! 自社HP(https://www.cosmo-est.com/)にて物件情報随時更新中!! お電話は092-474-3303まで!