volare西新
ここに注目!【新築】◆空港線西新駅 徒歩5分圏内と駅チカ! ◆重飲食可。サロンも可。業種ご相談ください! ◆使用面積56.76㎡ (約17.17坪) ※間取り・写真は現況優先となります。 内覧をご希望の方はお気軽にお申し付けください! 福岡の物件全てご紹介出来ます!!何でもご相談下さい♪
| 賃料・費用 |
37万7,520円
(+管理費等 -円)
坪単価:約2.2万円/坪
敷68万6,400円礼37万7,520円(1ヶ月)仲37万7,520円
|
|---|---|
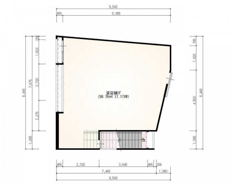
| 専有面積 | 56.76m² (17.16坪) |
| 住所 | 福岡県福岡市早良区西新1-3-10 |
| 交通 | 西新駅(徒歩5分)|唐人町駅(徒歩14分)|別府駅(徒歩20分) |
| 階/階建 | 1階 / 2階建 |
| 築年月 | 新築(2025年3月) |
| 駐車場 |
なし
|
空室確認、見学、詳細を知りたい方はこちら!
お電話の際は「連合隊の物件」とお伝えください。
情報掲載期限:あと26日(更新日 2025/12/12)
- 物件写真・概要
- 周辺地図
-
空室確認、見学、詳細を知りたい方はこちら!
おすすめポイント
- 駅徒歩5分以内
- スケルトン
- 出店するなら…この業種がおすすめ!
- 飲食全般(重飲食含む)

- 喫茶・カフェ(軽飲食)

- バー・クラブ・スナック

- 小売・物販

- 美容・健康・介護

- 医療

- 教育・スクール

- 事務所

- アミューズメント

※出店不可の業種:水商売
交通色がついているアイコンをクリックすると、本物件までの道順を見ることができます。
物件概要
所在階/建物の階建 1階 / 地上2階建 主要採光面 構造 木造 間取り 契約期間 2年間 権利金 なし 住宅保険 お問合せください 出店推奨業種 飲食全般(重飲食含む)、小売・物販、美容・健康・介護 出店不可業種 水商売 引渡し 相談(予定 2025年03月下旬) 管理人 巡回 取引態様 仲介 物件No 早良テ 設備・特徴 - スケルトン
備考 保証会社必須、保険は契約者で加入(補償金額は問合せください)。スケルトン渡しスケルトン返し。 店舗に対する消防法の規定(内装制限・防火管理者・消防用設備と消防点検・防炎物品・罰則)は借主の責任でお願いします。 月~土で内覧可能になりました! ※資料と現況が異なる場合は現況を優先させて頂きます。 主な周辺施設色がついているアイコンをクリックすると、本物件までの道順を見ることができます。
-
※連合隊は物件情報の精度向上に努めています:「物件情報に誤りがある」「成約済みである」などお気付きの点がございましたらこちらよりご連絡ください。
写真枚数:4枚









ペット可物件の事ならコスモサービスへ!ワンちゃん、ねこちゃん、多頭飼育!何でもご相談ください!
福岡の物件全てご紹介出来ます!! 自社HP(https://www.cosmo-est.com/)にて物件情報随時更新中!! お電話は092-474-3303まで!