M.BLD
ここに注目!【2024/9完成の新築テナント!】 ◆原町駅(福北ゆたか線)徒歩6分! ◆飲食店不可 ◆業種ご相談ください! ◆駐車場は6台有(1テナント2台まで)内装は下地仕上げのお渡しです。 ※間取り・写真は現況優先となります。 福岡の物件全てご紹介出来ます!!何でもご相談下さい♪ 内覧をご希望の方はお気軽にお申し付けください!
| 賃料・費用 |
18万7,000円
(+管理費等 -円)
坪単価:約1.3万円/坪
敷なし礼18万7,000円(1ヶ月)仲18万7,000円
|
|---|---|
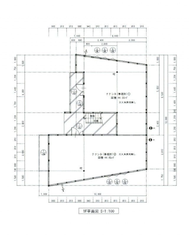
| 専有面積 | 48.65m² (14.71坪) |
| 住所 | 福岡県糟屋郡粕屋町若宮1-10-34 |
| 交通 | 原町駅(徒歩6分)|長者原駅(徒歩10分)|伊賀駅(徒歩17分) |
| 階/階建 | 2階 / 2階建 |
| 築年月 | 築1年(2024年9月) |
| 駐車場 |
あり (6,600円/台)
1部屋につき2区画まで ※申し込み時要確認 |
空室確認、見学、詳細を知りたい方はこちら!
お電話の際は「連合隊の物件」とお伝えください。
情報掲載期限:あと16日(更新日 2025/12/12)
- 物件写真・概要
- 周辺地図
-
空室確認、見学、詳細を知りたい方はこちら!
おすすめポイント
- 駐車場あり
- スケルトン
- エアコン付
- 出店するなら…この業種がおすすめ!
- 飲食全般(重飲食含む)

- 喫茶・カフェ(軽飲食)

- バー・クラブ・スナック

- 小売・物販

- 美容・健康・介護

- 医療

- 教育・スクール

- 事務所

- アミューズメント

※出店不可の業種:飲食全般
交通色がついているアイコンをクリックすると、本物件までの道順を見ることができます。
物件概要
所在階/建物の階建 2階(2B) / 地上2階建 主要採光面 構造 木造 間取り 契約期間 2年間 更新料/更新手数料 なし 権利金 なし 住宅保険 お問合せください 出店推奨業種 小売・物販、美容・健康・介護、事務所 出店不可業種 飲食全般 その他費用 一時金 - 入居時消毒代:1万7,600円
引渡し 相談 管理人 巡回 取引態様 仲介 物件No 糟屋テ 設備・特徴 - エアコン付
- スケルトン
備考 ◇その他備考 ・更新事務手数料:33,000円 ・町費確認中 ・室内クリーニング代:故意過失実費 ※火災保険:入居者様にてご加入必須 ※短期解約違約金:1年未満2ヶ月 2年未満1ヶ月 記載内容と現状が異なる場合は現状優先となります。 主な周辺施設色がついているアイコンをクリックすると、本物件までの道順を見ることができます。
-
※連合隊は物件情報の精度向上に努めています:「物件情報に誤りがある」「成約済みである」などお気付きの点がございましたらこちらよりご連絡ください。
写真枚数:11枚









ペット可物件の事ならコスモサービスへ!ワンちゃん、ねこちゃん、多頭飼育!何でもご相談ください!
福岡の物件全てご紹介出来ます!! 自社HP(https://www.cosmo-est.com/)にて物件情報随時更新中!! お電話は092-474-3303まで!