UEKIビル
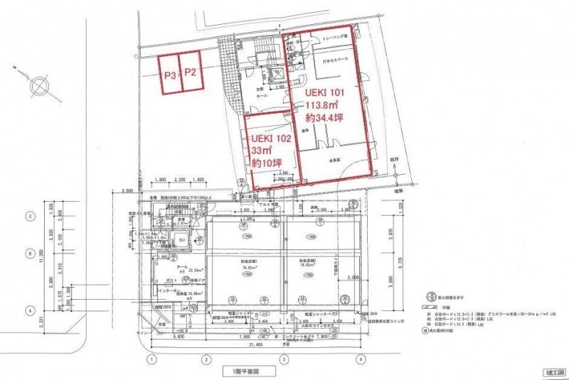
ここに注目!◆事務所仕様で募集中! ◆薬院駅まで徒歩5分! ◆駐車場あり! ◆使用面積113.8㎡ (約34.42坪) ◆24時間セキュリティで安心 ※間取り・写真は現況優先となります。 福岡の物件全てご紹介出来ます!!何でもご相談下さい♪ 内覧をご希望の方はお気軽にお申し付けください!
この物件の契約期間は 2年間です。
定期借家物件は、賃貸借契約期間満了後、原則として契約の更新ができない物件です。再契約の可否については不動産会社にお問合せください。
| 賃料・費用 |
66万円
(+管理費等 -円)
坪単価:約1.9万円/坪
敷300万円礼132万円(2ヶ月)仲66万円
保証金:なし
|
|---|---|
| 専有面積 | 113.8m² (34.42坪) |
| 住所 | 福岡県福岡市中央区白金1-5-22 |
| 交通 | 薬院駅(徒歩5分)|渡辺通駅(徒歩8分)|薬院大通駅(徒歩12分)道順を見る |
| 階/階建 | 1階 |
| 築年月 | 築12年(2013年10月) |
| 駐車場 |
あり
自走(平置きも含む)、屋根無し※申込時要確認 |
空室確認、見学、詳細を知りたい方はこちら!
お電話の際は「連合隊の物件」とお伝えください。
情報掲載期限:あと6日(更新日 2025/11/15)
- 物件写真・概要
- 周辺地図
-
空室確認、見学、詳細を知りたい方はこちら!
おすすめポイント
- 駅徒歩5分以内
- 駐車場あり
- 24時間セキュリティー
交通色がついているアイコンをクリックすると、本物件までの道順を見ることができます。
物件概要
所在階/建物の階建 1階 主要採光面 構造 鉄筋コンクリート(RC)造 間取り バルコニー あり契約期間 定期借家(2年間) 権利金 住宅保険 お問合せください 引渡し 相談 管理人 巡回 取引態様 仲介 物件No 中事 設備・特徴 - エレベーター
- 24時間セキュリティー
- その他インターネット
備考 ※定期借家2年契約 ※専有面積113.8㎡(約34.42坪) ※当該資料と現状が異なる場合は現状を優先とさせていただきます。 ※短期解約違約金は1年未満の場合賃料2ヶ月分、2年未満の場合賃料1ヶ月分 ※火災保険、鍵交換代、館内表示変更費用は実費精算 ※インターネットご利用の場合は個別契約になります。(回線引き込み工事含む。) 主な周辺施設色がついているアイコンをクリックすると、本物件までの道順を見ることができます。
-
※連合隊は物件情報の精度向上に努めています:「物件情報に誤りがある」「成約済みである」などお気付きの点がございましたらこちらよりご連絡ください。
写真枚数:22枚









ペット可物件の事ならコスモサービスへ!ワンちゃん、ねこちゃん、多頭飼育!何でもご相談ください!
福岡の物件全てご紹介出来ます!! 自社HP(https://www.cosmo-est.com/)にて物件情報随時更新中!! お電話は092-474-3303まで!