TOMIKE TAKASAGO
ここに注目!R6.10月下旬完成予定☆天井高3,300mm☆スケルトン渡し☆職種要相談☆※現在建築中のため内覧不可。※3Fはガス管無し、ガス設備設置不可 本物件は『福祉のまちづくり条例整備基準適合物件』です。内装工事前に弊社の工事許可とあわせて事前に福岡市と打合せ、手続きが必要です。西鉄平尾駅徒歩圏内! ※間取り・写真は現況優先となります。 福岡の物件全てご紹介出来ます!!何でもご相談下さい♪
| 賃料・費用 |
14万5,943円
(+管理費等 5,500円)
坪単価:約1.6万円/坪
敷53万702円礼14万5,943円(1ヶ月)仲14万5,943円
|
|---|---|
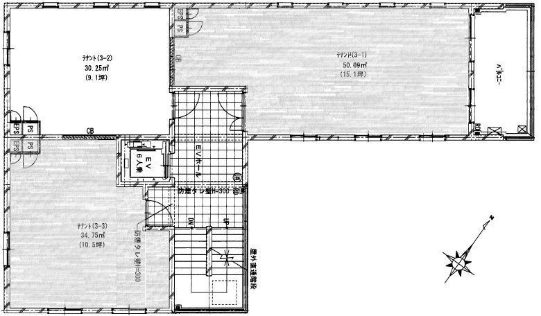
| 専有面積 | 30.25m² (9.15坪) |
| 住所 | 福岡県福岡市中央区高砂2-14 |
| 交通 | 西鉄平尾駅(徒歩8分)|渡辺通駅(徒歩14分)|薬院駅(徒歩14分) |
| 階/階建 | 3階 / 3階建 |
| 築年月 | 築1年(2024年10月) |
| 駐車場 |
なし
|
空室確認、見学、詳細を知りたい方はこちら!
お電話の際は「連合隊の物件」とお伝えください。
情報掲載期限:あと27日(更新日 2025/12/19)
- 物件写真・概要
- 周辺地図
-
空室確認、見学、詳細を知りたい方はこちら!
おすすめポイント
- スケルトン
- 出店するなら…この業種がおすすめ!
- 飲食全般(重飲食含む)

- 喫茶・カフェ(軽飲食)

- バー・クラブ・スナック

- 小売・物販

- 美容・健康・介護

- 医療

- 教育・スクール

- 事務所

- アミューズメント

交通色がついているアイコンをクリックすると、本物件までの道順を見ることができます。
物件概要
所在階/建物の階建 3階(302) / 地上3階建 主要採光面 構造 鉄筋コンクリート(RC)造 間取り 契約期間 2年間 権利金 住宅保険 お問合せください 出店推奨業種 喫茶・カフェ(軽飲食)、美容・健康・介護、医療 出店不可業種 その他費用 一時金 - 鍵交換料:1万9,800円
- テナント名入れ代:4万4,000円
引渡し 相談(予定 2024年11月上旬) 管理人 巡回 取引態様 仲介 物件No 中テ 設備・特徴 - エレベーター
- スケルトン
備考 記載内容と現状が異なる場合は現状優先となります。 主な周辺施設色がついているアイコンをクリックすると、本物件までの道順を見ることができます。
-
※連合隊は物件情報の精度向上に努めています:「物件情報に誤りがある」「成約済みである」などお気付きの点がございましたらこちらよりご連絡ください。
写真枚数:8枚









ペット可物件の事ならコスモサービスへ!ワンちゃん、ねこちゃん、多頭飼育!何でもご相談ください!
福岡の物件全てご紹介出来ます!! 自社HP(https://www.cosmo-est.com/)にて物件情報随時更新中!! お電話は092-474-3303まで!