ヴィラージュ博多駅前オフィス
ここに注目!【築浅】博多駅より徒歩7分、オフィスとして立地です☆屋上看板設置可(看板料別途)OAフロア、タイルカーペット★ 福岡の物件全てご紹介出来ます!!何でもご相談下さい♪ ★福岡の物件はコスモサービスまで★
| 賃料・費用 |
33万2,200円
(+管理費等 3万3,000円)
坪単価:約1.5万円/坪
敷90万6,000円礼なし仲33万2,200円
|
|---|---|
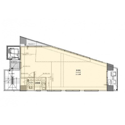
| 専有面積 | 73.07m² (22.1坪) |
| 住所 | 福岡県福岡市博多区博多駅前4丁目37-2 |
| 交通 | 博多駅(徒歩7分)|祇園駅(徒歩10分)|櫛田神社前駅(徒歩9分) |
| 階/階建 | 4階 / 7階建 |
| 築年月 | 築5年(2020年1月) |
| 駐車場 |
なし
駐車場は駐車場管理会社と直接契約になります。 |
空室確認、見学、詳細を知りたい方はこちら!
お電話の際は「連合隊の物件」とお伝えください。
情報掲載期限:あと8日(更新日 2025/12/2)
- 物件写真・概要
- 周辺地図
-
空室確認、見学、詳細を知りたい方はこちら!
おすすめポイント
- 複数路線利用可
- エアコン付
- OAフロア
- 24時間セキュリティー
交通色がついているアイコンをクリックすると、本物件までの道順を見ることができます。
- 博多駅九州新幹線、JR博多南線、福北ゆたか線、福岡市営地下鉄空港線、福岡市営地下鉄七隈線、山陽新幹線、JR鹿児島本線徒歩7分(約545m)
- 祇園駅福岡市営地下鉄空港線徒歩10分(約765m)
- 櫛田神社前駅福岡市営地下鉄七隈線徒歩9分(約715m)
物件概要
所在階/建物の階建 4階 / 地上7階建 主要採光面 南東 構造 鉄筋コンクリート(RC)造 間取り バルコニー あり(3.67m²)契約期間 3年間 権利金 住宅保険 (2年間) その他費用 一時金 - 鍵製作料:2万2,000円
引渡し 相談(12/27退去予定) 管理人 巡回 取引態様 仲介 物件No 博多事 設備・特徴 - OAフロア
- エアコン付
- 複数路線利用可
- エレベーター
- 24時間セキュリティー
備考 ※資料と現況が異なる場合は現況を優先させて頂きます。 屋上看板設置可 事務机、会議用テーブル、椅子、パーテーション、キャビネットサービス設置 主な周辺施設色がついているアイコンをクリックすると、本物件までの道順を見ることができます。
-
※連合隊は物件情報の精度向上に努めています:「物件情報に誤りがある」「成約済みである」などお気付きの点がございましたらこちらよりご連絡ください。
写真枚数:26枚









ペット可物件の事ならコスモサービスへ!ワンちゃん、ねこちゃん、多頭飼育!何でもご相談ください!
福岡の物件全てご紹介出来ます!! 自社HP(https://www.cosmo-est.com/)にて物件情報随時更新中!! お電話は092-474-3303まで!