西日本新聞吉塚スクエア
ここに注目!福岡市博多区吉塚に、2025年1月竣工予定の「西日本新聞吉塚スクエア」が誕生しました。 広々とした161.25㎡(約48坪)の空間は、開放感あふれるデザイナーズ仕様。事務所利用にふさわしい洗練された雰囲気で、照明器具や給排水設備も完備されており、スムーズな事業開始を力強くサポートします。 事業用物件で特に重視される駐車場は、なんと3台分が無料でご利用いただけます。お車での通勤や来客が多い業種の方にも大変便利です。4台目以降もご相談可能ですので、お気軽にお問い合わせください。 博多区吉塚エリアで新たなビジネス拠点をお探しの方に。この機会にぜひご検討ください。
| 賃料・費用 |
53万6,580円
(+管理費等 -円)
坪単価:約1.1万円/坪
敷390万2,400円仲53万6,580円
|
|---|---|
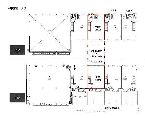
| 専有面積 | 161.25m² (48.77坪) |
| 住所 | 福岡県福岡市博多区吉塚8-2-15 |
| 交通 | 吉塚駅(徒歩16分)|柚須駅(徒歩18分)|馬出九大病院前駅(徒歩22分)|箱崎宮前駅(徒歩26分)|福岡空港駅(徒歩28分)道順を見る |
| 階/階建 | 1階 / 2階建 |
| 築年月 | 築1年未満(2025年5月) |
| 駐車場 |
あり 駐車可能台数:3台
4代目より11,000円(都度要空き確認) |
空室確認、見学、詳細を知りたい方はこちら!
お電話の際は「連合隊の物件」とお伝えください。
情報掲載期限:あと22日(更新日 2025/12/11)
- 物件写真・概要
- 周辺地図
-
空室確認、見学、詳細を知りたい方はこちら!
おすすめポイント
- 即入居可
- 駐車2台以上可
- デザイナーズ
- 出店するなら…この業種がおすすめ!
- 飲食全般(重飲食含む)

- 喫茶・カフェ(軽飲食)

- バー・クラブ・スナック

- 小売・物販

- 美容・健康・介護

- 医療

- 教育・スクール

- 事務所

- アミューズメント

※出店不可の業種:その他
交通色がついているアイコンをクリックすると、本物件までの道順を見ることができます。
- 吉塚駅福北ゆたか線、JR鹿児島本線徒歩16分(約1.3km)
- 柚須駅福北ゆたか線徒歩18分(約1.5km)
- 馬出九大病院前駅福岡市営地下鉄箱崎線徒歩22分(約1.8km)
- 箱崎宮前駅福岡市営地下鉄箱崎線徒歩26分(約2.1km)
- 福岡空港駅福岡市営地下鉄空港線徒歩28分(約2.2km)
物件概要
所在階/建物の階建 1階 / 地上2階建 主要採光面 構造 鉄骨造 間取り 契約期間 権利金 住宅保険 出店推奨業種 事務所 出店不可業種 その他(倉庫事務所) 引渡し 即時 管理人 取引態様 仲介 物件No 設備・特徴 - デザイナーズ
- 照明器具付
- 給排水設備
備考 主な周辺施設色がついているアイコンをクリックすると、本物件までの道順を見ることができます。
-
ホームページはこちら
福岡県知事(1) 第20377号
(株)新生不動産〒815-0033
TEL:092-551-2356(物件お問い合わせ 9:30~19:00)
TEL:092-551-2364(管理部 9:30~18:00)
営業時間:9:30~19:00
定休日:毎週 日曜・祝日 / 第2 土曜
- 加入団体
- (公社)福岡県宅地建物取引業協会
- 保証協会
- (公社)全国宅地建物取引業保証協会
※連合隊は物件情報の精度向上に努めています:「物件情報に誤りがある」「成約済みである」などお気付きの点がございましたら こちら よりご連絡ください。
写真枚数:14枚
福岡市はもちろん周辺エリアも圧倒的な情報力でお客様に最適な物件をお探し致します!
お問い合わせは便利なLINEで!物件ご紹介やリモートでのご内覧も可能です^^ もちろんお電話やメールでも構いません(=^・^=) LINEの友だち登録は下記URLより!営業時間外でもOK! http://nav.cx/9azV6eM