仮)的場2丁目倉庫事務所1~4
ここに注目!福岡市南区で事業の拠点をお探しの方へ!的場2丁目に、機能的な貸倉庫・事務所物件が登場しました。広々とした101.19㎡の空間は、多様なビジネスニーズに対応できる柔軟性を持っています。 こちらの物件の大きなポイントは、事業運営に欠かせない駐車場が「4台分も無料で利用可能」なこと。車両での移動が多い業種や、来客対応が多いオフィスにとって、これほど心強い条件はありません。 周辺環境も充実しており、徒歩圏内にはコンビニ、ドラッグストア、スーパーなど、日々の業務をサポートする施設が揃っています。鉄骨造の堅牢な建物は、安心感を提供します。 新しい事業のスタートや、既存事業の拡大に最適なこの機会をどうぞお見逃しなく。物件の詳細情報や現地のご案内については、お気軽にお問い合わせください。お客様のビジネスを全力でサポートいたします!
| 賃料・費用 |
30万2,500円
(+管理費等 -円)
坪単価:約9,886円/坪
仲30万2,500円
|
|---|---|
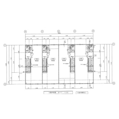
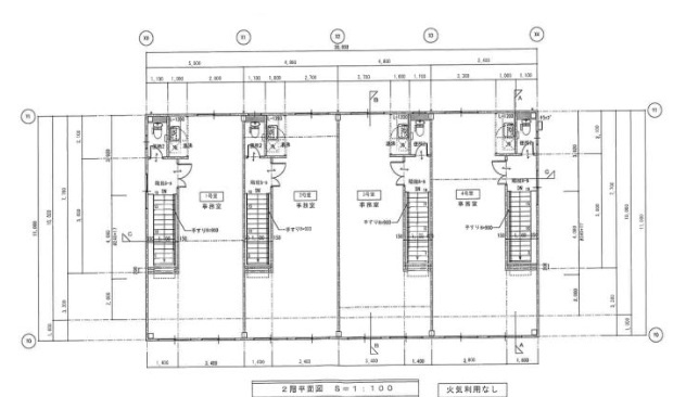
| 専有面積 | 101.19m² (30.6坪) |
| 住所 | 福岡県福岡市南区的場2-40-20 |
| 交通 | 井尻駅(徒歩24分)|博多南駅(徒歩31分)|笹原駅(徒歩34分)|大橋駅(徒歩35分)|南福岡駅(徒歩36分)道順を見る |
| 階/階建 | 2階建 |
| 築年月 | 建築中(2026年8月完成予定) |
| 駐車場 |
無料 駐車可能台数:4台
|
空室確認、見学、詳細を知りたい方はこちら!
お電話の際は「連合隊の物件」とお伝えください。
情報掲載期限:あと27日(更新日 2026/2/11)
- 物件写真・概要
- 周辺地図
-
空室確認、見学、詳細を知りたい方はこちら!
交通色がついているアイコンをクリックすると、本物件までの道順を見ることができます。
- 井尻駅西鉄天神大牟田線徒歩24分(約1.9km)
- 博多南駅JR博多南線徒歩31分(約2.5km)
- 笹原駅JR鹿児島本線徒歩34分(約2.8km)
- 大橋駅西鉄天神大牟田線徒歩35分(約2.8km)
- 南福岡駅JR鹿児島本線徒歩36分(約2.9km)
物件概要
所在階/建物の階建 2 / 地上2階建 主要採光面 構造 鉄骨造 間取り 契約期間 権利金 住宅保険 出店推奨業種 出店不可業種 用途地域 - 第2種住居地域
その他費用 一時金 - 保証料:31万3,500円
引渡し 管理人 巡回 取引態様 仲介 物件No 設備・特徴 備考 主な周辺施設色がついているアイコンをクリックすると、本物件までの道順を見ることができます。
-
ホームページはこちら
福岡県知事(1) 第20377号
(株)新生不動産〒815-0033
TEL:092-551-2356(物件お問い合わせ 9:30~19:00)
TEL:092-551-2364(管理部 9:30~18:00)
営業時間:9:30~19:00
定休日:毎週 日曜・祝日 / 第2 土曜
- 加入団体
- (公社)福岡県宅地建物取引業協会
- 保証協会
- (公社)全国宅地建物取引業保証協会
※連合隊は物件情報の精度向上に努めています:「物件情報に誤りがある」「成約済みである」などお気付きの点がございましたら こちら よりご連絡ください。
写真枚数:3枚
福岡市はもちろん周辺エリアも圧倒的な情報力でお客様に最適な物件をお探し致します!
お問い合わせは便利なLINEで!物件ご紹介やリモートでのご内覧も可能です^^ もちろんお電話やメールでも構いません(=^・^=) LINEの友だち登録は下記URLより!営業時間外でもOK! http://nav.cx/9azV6eM