F-60
ここに注目!札幌市中央区大通西に位置する「F-60」は、新しいビジネスの拠点をお探しの方にぴったりの貸事務所です。札幌市営地下鉄「大通」駅から徒歩5分、「西11丁目」駅からも徒歩4分と、複数路線が利用できる大変便利な立地が魅力。通勤・営業にもスムーズなアクセスを実現します。 5階部分の専有面積は広々とした391.08㎡。窓からは「大通公園」を見下ろす開放的な眺望が広がり、日々の業務に心地よいインスピレーションを与えてくれるでしょう。24時間利用可能で、24時間セキュリティーも完備しており、安心してビジネスに集中していただけます。個別空調やOAフロア、高速インターネット回線も整っており、快適なオフィス環境をサポート。 周辺にはコンビニが充実しており、急な買い物にも困りません。駐車場もございますので、お車でのアクセスも便利です。ビジネスを加速させる理想のオフィスで、新たな一歩を踏み出しませんか?
この物件の契約期間は 3年間です。
定期借家物件は、賃貸借契約期間満了後、原則として契約の更新ができない物件です。再契約の可否については不動産会社にお問合せください。
| 賃料・費用 |
221万2,210円
(+管理費等 39万390円)
坪単価:約1.9万円/坪
仲221万2,210円
保証金:2,413万3,200円
|
|---|---|
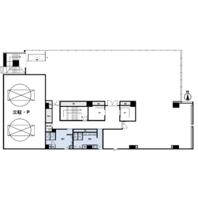
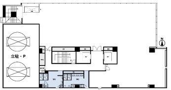
| 専有面積 | 391.08m² (118.3坪) |
| 住所 | 北海道札幌市中央区大通西8丁目1番8 |
| 交通 | 大通駅(徒歩5分)|さっぽろ駅(徒歩15分)|西11丁目駅(徒歩4分)道順を見る |
| 階/階建 | 5階 / 9階建 |
| 築年月 | 築15年(2010年4月) |
| 駐車場 |
あり
|
【WEB面談可】
空室確認、見学、詳細を知りたい方はこちら!
お電話の際は「連合隊の物件」とお伝えください。
情報掲載期限:あと12日(更新日 2025/12/26)
- 物件写真・概要
- 周辺地図
-
【WEB面談可】
空室確認、見学、詳細を知りたい方はこちら!おすすめポイント
- 駅徒歩5分以内
- 複数路線利用可
- 駅前立地
- 駐車場あり
- 男女別トイレ
- 光ファイバー
- OAフロア
- 24時間セキュリティー
交通色がついているアイコンをクリックすると、本物件までの道順を見ることができます。
- 大通駅札幌市営地下鉄南北線、札幌市営地下鉄東豊線、札幌市営地下鉄東西線徒歩5分
- さっぽろ駅札幌市営地下鉄南北線、札幌市営地下鉄東豊線、JR札沼線、JR千歳線、JR函館本線徒歩15分
- 西11丁目駅札幌市電山鼻線、札幌市営地下鉄東西線徒歩4分
物件概要
所在階/建物の階建 5階 / 地上9階建 主要採光面 構造 鉄骨鉄筋コンクリート(SRC)造 間取り 契約期間 定期借家(3年間) 権利金 住宅保険 引渡し 2026年6月初旬 管理人 取引態様 仲介 物件No 設備・特徴 - 複数路線利用可
- 駅前立地
- 商店街に面す
- 幹線道路沿い
- エレベーター
- 照明器具付
- OAフロア
- 個別空調
- 24時間セキュリティー
- ブロードバンド回線(光ファイバー等の高速インターネット)
- 男女別トイレ(共用部)
- 男女別トイレ
- 24時間利用可
備考 事務所 保証会社加入必須 主な周辺施設色がついているアイコンをクリックすると、本物件までの道順を見ることができます。
-
ホームページはこちら
北海道知事 石狩(1) 第8820号
いちりん開発(株) 【WEB面談可】〒001-0033
TEL:011-299-4905
FAX:011-299-4906
営業時間:9:00~18:00
定休日:毎週 土曜・日曜・祝日
- 加入団体
- (公社)全日本不動産協会、(一社)不動産協会
- 保証協会
- (公社)不動産保証協会
- 公正取引協議会
- 未加盟
※連合隊は物件情報の精度向上に努めています:「物件情報に誤りがある」「成約済みである」などお気付きの点がございましたらこちらよりご連絡ください。
写真枚数:10枚
札幌市内の小規模賃貸事務所(10万円以下)を数多くご紹介しております。
地下鉄から徒歩10分以内で通いやすくてお洒落な賃貸事務所を数多くご用意しておりますので、ぜひお問合せ下さいませ。 ★札幌小規模賃貸事務所: https://jimusyokensaku.ichi-rin.jp