MMS札幌駅前ビル
ここに注目!JR「札幌」駅まで徒歩4分!複数路線が利用できるMMS札幌駅前ビルは、ビジネスの拠点に最適なオフィスです。地下鉄「大通」駅も徒歩11分圏内でアクセス良好。駅前通りに面し、交通利便性に優れた立地が魅力です。 専有面積342.81m²の広々とした空間は、5階に位置し、開放感があります。24時間利用可能で、貴社の多様なワークスタイルをサポート。24時間セキュリティ、セントラル空調、光ファイバー、照明器具、エアコン付など、充実した設備が快適な執務環境を提供します。男女別トイレ(共用部)も完備。 周辺にはコンビニ、銀行、ドラッグストア、飲食店、ショッピングセンター「アピア」などが徒歩1~3分圏内にあり、日々のビジネスを強力にバックアップします。 月額賃料1,482,910円(税込)、管理費456,280円。礼金なしで初期費用を抑えられます。敷金はございますが、駐車場も月額44,000円で利用可能です。 この機会にぜひご検討ください。お問い合わせをお待ちしております。
この物件の契約期間は 3年間です。
定期借家物件は、賃貸借契約期間満了後、原則として契約の更新ができない物件です。再契約の可否については不動産会社にお問合せください。
| 賃料・費用 |
148万2,910円
(+管理費等 45万6,280円)
坪単価:約1.4万円/坪
敷1,617万7,200円仲148万2,910円
|
|---|---|
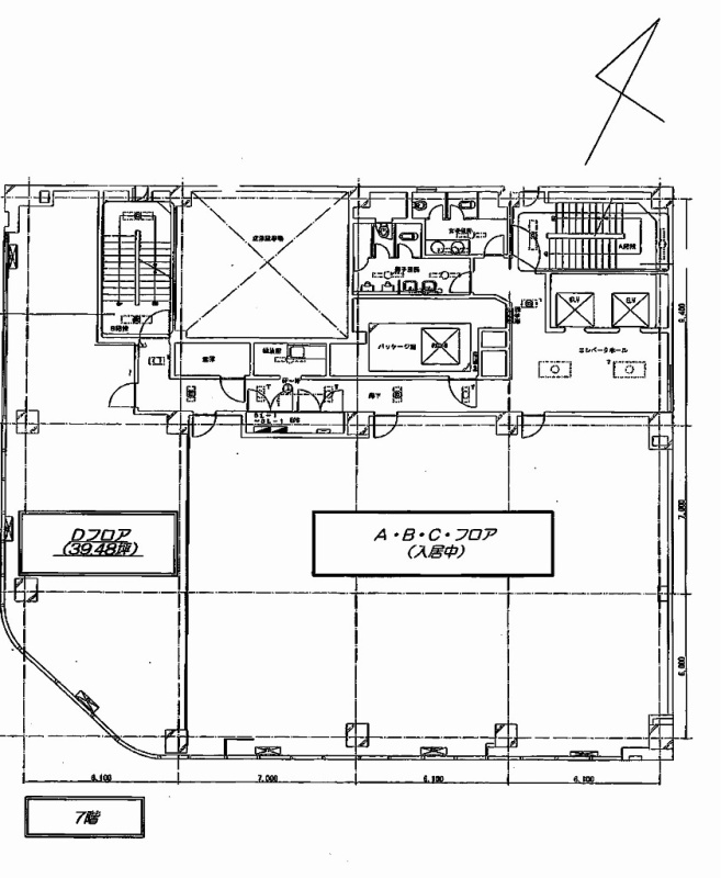
| 専有面積 | 342.81m² (103.7坪) |
| 住所 | 北海道札幌市中央区北四条西4丁目1 |
| 交通 | 札幌駅(徒歩4分)|大通駅(徒歩11分)道順を見る |
| 階/階建 | 5階 / 8階建(地下2階) |
| 築年月 | 築41年(1984年11月) |
| 駐車場 |
あり (4万4,000円/台)
|
【WEB面談可】
空室確認、見学、詳細を知りたい方はこちら!
お電話の際は「連合隊の物件」とお伝えください。
情報掲載期限:あと29日(更新日 2026/4/30)
- 物件写真・概要
- 周辺地図
-
【WEB面談可】
空室確認、見学、詳細を知りたい方はこちら!おすすめポイント
- 駅徒歩5分以内
- 複数路線利用可
- 駅前立地
- 駐車場あり
- 男女別トイレ
- エアコン付
- 光ファイバー
- 24時間セキュリティー
交通色がついているアイコンをクリックすると、本物件までの道順を見ることができます。
- 札幌駅札幌市営地下鉄南北線、札幌市営地下鉄東豊線、JR札沼線、JR千歳線、JR函館本線徒歩4分(約303m)
- 大通駅札幌市営地下鉄南北線、札幌市営地下鉄東豊線、札幌市営地下鉄東西線徒歩11分(約837m)
物件概要
所在階/建物の階建 5階 / 地上8階 地下2階建 主要採光面 構造 鉄骨鉄筋コンクリート(SRC)造 間取り 契約期間 定期借家(3年間) 権利金 住宅保険 引渡し 2026年4月初旬 管理人 取引態様 仲介 物件No 設備・特徴 - エアコン付
- セントラル空調
- 駅前立地
- エレベーター
- 幹線道路沿い
- 男女別トイレ(共用部)
- 商店街に面す
- 複数路線利用可
- 照明器具付
- 24時間セキュリティー
- ブロードバンド回線(光ファイバー等の高速インターネット)
- 24時間利用可
- 男女別トイレ
備考 事務所向き 定期借家契約年数相談。 主な周辺施設色がついているアイコンをクリックすると、本物件までの道順を見ることができます。
-
ホームページはこちら
北海道知事 石狩(1) 第8820号
いちりん開発(株) 【WEB面談可】〒001-0033
TEL:011-299-4905
FAX:011-299-4906
営業時間:9:00~18:00
定休日:毎週 土曜・日曜・祝日
- 加入団体
- (公社)全日本不動産協会、(一社)不動産協会
- 保証協会
- (公社)不動産保証協会
- 公正取引協議会
- 未加盟
※連合隊は物件情報の精度向上に努めています:「物件情報に誤りがある」「成約済みである」などお気付きの点がございましたらこちらよりご連絡ください。
写真枚数:13枚
札幌市内の小規模賃貸事務所(10万円以下)を数多くご紹介しております。
地下鉄から徒歩10分以内で通いやすくてお洒落な賃貸事務所を数多くご用意しておりますので、ぜひお問合せ下さいませ。 ★札幌小規模賃貸事務所: https://jimusyokensaku.ichi-rin.jp