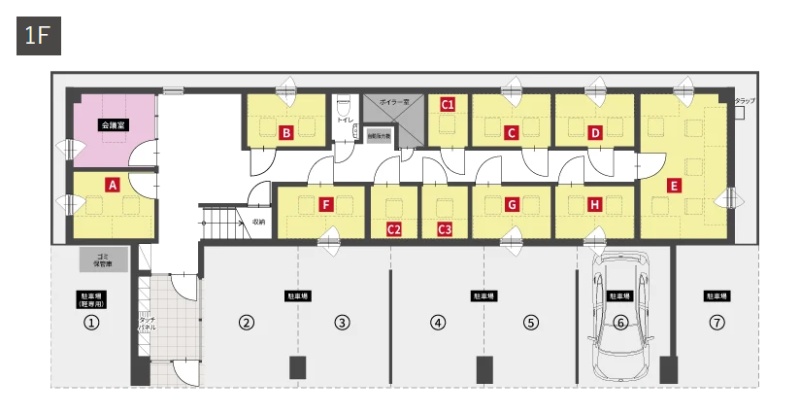
KANTINE MISONO C1室
ここに注目!次世代型オフィス「KANTINE MISONO」OPEN! 美園駅まで徒歩6分! 複数路線が利用でき、幹線道路沿いで視認性も良好です。 周辺には役所、コンビニ、月寒公園などがあり、利便性の高い環境で快適に業務に集中できます。 共有設備を賢く活用することで、コストを抑えながらも充実したオフィス環境を実現する「SKYオフィス」コンセプトの物件です。 予約システム付きの共有会議室やICカード認証付き複合機、給湯スペースなど、必要な機能が揃っています。 初期費用を抑えたい方にもおすすめです。さらに、インターネット無料、エアコン・照明器具付きで、入居後すぐに業務を開始できます。 新しいビジネスの拠点をお探しの方、ぜひ一度ご検討ください。
| 賃料・費用 |
2万6,400円
(+管理費等 -円)
坪単価:約3.7万円/坪
敷なし礼なし仲2万6,400円
|
|---|---|
| 専有面積 | 2.4m² (0.72坪) |
| 住所 | 北海道札幌市豊平区美園十二条7丁目1-18 |
| 交通 | 美園駅(徒歩6分)|南平岸駅(徒歩17分)|白石駅(徒歩20分)道順を見る |
| 階/階建 | 1階 / 4階建 |
| 築年月 | 新築(2025年12月) |
| 駐車場 |
あり
|
【WEB面談可】
空室確認、見学、詳細を知りたい方はこちら!
お電話の際は「連合隊の物件」とお伝えください。
情報掲載期限:あと25日(更新日 2026/1/28)
- 物件写真・概要
- 周辺地図
-
【WEB面談可】
空室確認、見学、詳細を知りたい方はこちら!おすすめポイント
- 複数路線利用可
- 駅前立地
- 幹線道路沿い
- 駐車場あり
- デザイナーズ
- 男女別トイレ
- エアコン付
- 光ファイバー
- 24時間セキュリティー
- 敷金・礼金0円
- 出店するなら…この業種がおすすめ!
- 飲食全般(重飲食含む)

- 喫茶・カフェ(軽飲食)

- バー・クラブ・スナック

- 小売・物販

- 美容・健康・介護

- 医療

- 教育・スクール

- 事務所

- アミューズメント

交通色がついているアイコンをクリックすると、本物件までの道順を見ることができます。
物件概要
所在階/建物の階建 1階(C1) / 地上4階建 主要採光面 構造 鉄骨造 間取り 契約期間 1年間 権利金 住宅保険 出店推奨業種 事務所 出店不可業種 引渡し 期日指定(2026年1月入居可能予定) 管理人 取引態様 仲介 物件No 設備・特徴 - 複数路線利用可
- 幹線道路沿い
- デザイナーズ
- 照明器具付
- 給排水設備
- エアコン付
- 24時間セキュリティー
- ブロードバンド回線(光ファイバー等の高速インターネット)
- 24時間利用可
- 男女別トイレ
- 男女別トイレ(共用部)
- 駅前立地
備考 ・24時間セキュリティで安心した利用が可能です。 ・予約システムを使った共有会議室完備。 ・ICカード認証付き共有複合機完備。 ・その他共有で、給湯スペース、トイレなどの設備をご用意しております。 主な周辺施設色がついているアイコンをクリックすると、本物件までの道順を見ることができます。
-
ホームページはこちら
北海道知事 石狩(1) 第8820号
いちりん開発(株) 【WEB面談可】〒001-0033
TEL:011-299-4905
FAX:011-299-4906
営業時間:9:00~18:00
定休日:毎週 土曜・日曜・祝日
- 加入団体
- (公社)全日本不動産協会、(一社)不動産協会
- 保証協会
- (公社)不動産保証協会
- 公正取引協議会
- 未加盟
※連合隊は物件情報の精度向上に努めています:「物件情報に誤りがある」「成約済みである」などお気付きの点がございましたらこちらよりご連絡ください。
写真枚数:25枚
札幌市内の小規模賃貸事務所(10万円以下)を数多くご紹介しております。
地下鉄から徒歩10分以内で通いやすくてお洒落な賃貸事務所を数多くご用意しておりますので、ぜひお問合せ下さいませ。 ★札幌小規模賃貸事務所: https://jimusyokensaku.ichi-rin.jp