北8条ビル(1棟貸し)
ここに注目!札幌の中心部、北8条東に位置する、視認性の良い一棟貸しオフィス「北8条ビル」のご紹介です。 JR札幌駅まで徒歩9分、札幌市営地下鉄東豊線「北13条東駅」までも徒歩9分と、主要駅まで10分以内という優れたアクセスが魅力。複数路線が利用でき、ビジネスのフットワークを軽くします。 鉄筋コンクリート造3階建ての堂々たる建物は、企業の顔として相応しい存在感。専有面積はゆとりの1117.38㎡で、多様なオフィスレイアウトに対応可能です。駐車場も完備しており、来客時や社用車での移動にも便利。 個別空調、照明器具付、給排水設備、男女別トイレなど、快適な執務環境をサポートする設備も充実しています。周辺にはコンビニ、銀行、郵便局、商業施設が徒歩圏内に揃い、日々の業務や社員の皆様の利便性も確保されています。 本社移転や大規模な支店開設をご検討の企業様にぴったりの、ビジネス拠点としてご活用いただける物件です。この機会に、ぜひご検討ください。詳細はお気軽にお問い合わせください。
この物件の契約期間は 2030年12月までです。
定期借家物件は、賃貸借契約期間満了後、原則として契約の更新ができない物件です。再契約の可否については不動産会社にお問合せください。
| 賃料・費用 |
275万円
(+管理費等 -円)
坪単価:約8,137円/坪
敷250万円仲275万円
|
|---|---|
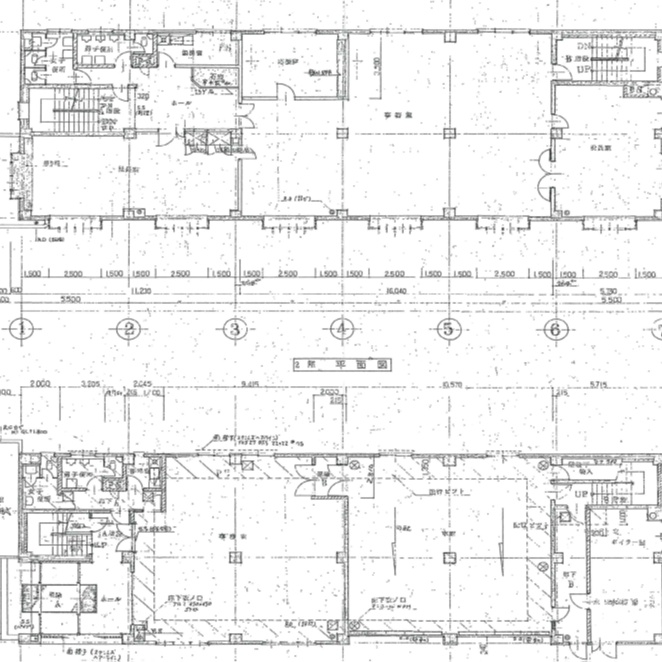
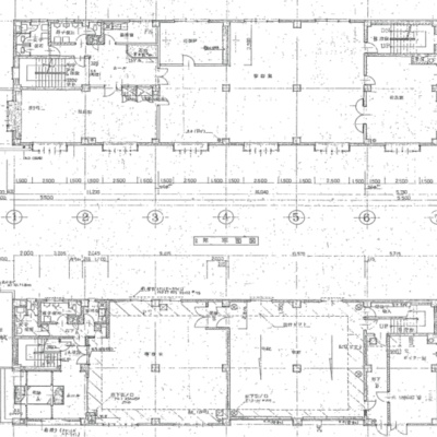
| 専有面積 | 1117.38m² (338坪) |
| 住所 | 北海道札幌市東区北八条東1丁目2-1 |
| 交通 | 札幌駅(徒歩9分)|北13条東駅(徒歩9分)道順を見る |
| 階/階建 | 3階建 |
| 築年月 | |
| 駐車場 |
あり
|
【WEB面談可】
空室確認、見学、詳細を知りたい方はこちら!
お電話の際は「連合隊の物件」とお伝えください。
情報掲載期限:あと21日(更新日 2025/12/15)
- 物件写真・概要
- 周辺地図
-
【WEB面談可】
空室確認、見学、詳細を知りたい方はこちら!おすすめポイント
- 即入居可
- 複数路線利用可
- 駅前立地
- 駐車場あり
- 男女別トイレ
交通色がついているアイコンをクリックすると、本物件までの道順を見ることができます。
物件概要
建物の階建 地上3階建 総戸数 構造 鉄筋コンクリート(RC)造 間取り 契約期間 定期借家(2030年12月まで) 権利金 住宅保険 引渡し 即時 管理人 取引態様 仲介 物件No 設備・特徴 - 駅前立地
- 幹線道路沿い
- 複数路線利用可
- 給排水設備
- 個別空調
- 照明器具付
- 角地
- 男女別トイレ
備考 事務所 主な周辺施設色がついているアイコンをクリックすると、本物件までの道順を見ることができます。
-
ホームページはこちら
北海道知事 石狩(1) 第8820号
いちりん開発(株) 【WEB面談可】〒001-0033
TEL:011-299-4905
FAX:011-299-4906
営業時間:9:00~18:00
定休日:毎週 土曜・日曜・祝日
- 加入団体
- (公社)全日本不動産協会、(一社)不動産協会
- 保証協会
- (公社)不動産保証協会
- 公正取引協議会
- 未加盟
※連合隊は物件情報の精度向上に努めています:「物件情報に誤りがある」「成約済みである」などお気付きの点がございましたらこちらよりご連絡ください。
写真枚数:3枚
札幌市内の小規模賃貸事務所(10万円以下)を数多くご紹介しております。
地下鉄から徒歩10分以内で通いやすくてお洒落な賃貸事務所を数多くご用意しておりますので、ぜひお問合せ下さいませ。 ★札幌小規模賃貸事務所: https://jimusyokensaku.ichi-rin.jp