日伊文化会館新館
ここに注目!札幌市中央区、ビジネスの可能性を広げる貸事務所のご紹介です! 地下鉄東西線「バスセンター前駅」まで徒歩3分! 大通駅へも徒歩9分、西4丁目駅へも徒歩10分と、3駅・複数路線が利用できる交通利便性の良い立地です。幹線道路沿いで視認性も良好。 周辺にはコンビニ、銀行、飲食店が豊富にあり、日々のビジネスライフを強力にサポートします。 専有面積28.23㎡の空間は、スタートアップ、サテライトオフィスなど、多様な働き方に対応します。 24時間利用可能で、あなたのビジネススケジュールに合わせた柔軟な運用ができます。 24時間セキュリティーで安心感も確保。個別空調、ブロードバンド回線、照明器具付と、快適なオフィス環境が整っています。 清潔感のある共用部の男女別トイレも魅力です。 この機会に、中央区の便利なオフィスで新たな一歩を踏み出しませんか? まずはお気軽にお問い合わせください!
| 賃料・費用 |
9万2,950円
(+管理費等 2万4,167円)
坪単価:約1.1万円/坪
敷25万3,500円仲9万2,950円
|
|---|---|
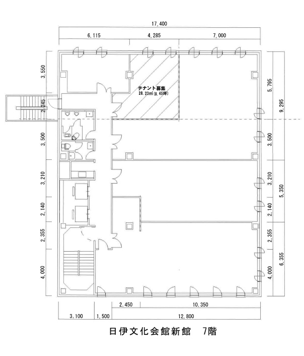
| 専有面積 | 28.23m² (8.53坪) |
| 住所 | 北海道札幌市中央区南一条東3丁目10-1 |
| 交通 | バスセンター前駅(徒歩3分)|大通駅(徒歩9分)|西4丁目駅(徒歩10分)道順を見る |
| 階/階建 | 7階 / 7階建 |
| 築年月 | 築40年(1985年7月) |
| 駐車場 |
あり
|
【WEB面談可】
空室確認、見学、詳細を知りたい方はこちら!
お電話の際は「連合隊の物件」とお伝えください。
情報掲載期限:あと24日(更新日 2025/12/26)
- 物件写真・概要
- 周辺地図
-
【WEB面談可】
空室確認、見学、詳細を知りたい方はこちら!おすすめポイント
- 駅徒歩3分以内
- 複数路線利用可
- 駅前立地
- 駐車場あり
- 男女別トイレ
- 光ファイバー
- 24時間セキュリティー
交通色がついているアイコンをクリックすると、本物件までの道順を見ることができます。
- バスセンター前駅札幌市営地下鉄東西線駅近!徒歩3分(約174m)
- 大通駅札幌市営地下鉄南北線、札幌市営地下鉄東豊線、札幌市営地下鉄東西線徒歩9分(約666m)
- 西4丁目駅札幌市電山鼻線徒歩10分(約800m)
物件概要
所在階/建物の階建 7階 / 地上7階建 主要採光面 構造 鉄骨鉄筋コンクリート(SRC)造 間取り 契約期間 1年間 権利金 住宅保険 引渡し 2025年10月中旬 管理人 取引態様 仲介 物件No 設備・特徴 - 複数路線利用可
- 駅前立地
- エレベーター
- 個別空調
- 24時間利用可
- 男女別トイレ
- 男女別トイレ(共用部)
- 幹線道路沿い
- 照明器具付
- 24時間セキュリティー
- ブロードバンド回線(光ファイバー等の高速インターネット)
備考 事務所 主な周辺施設色がついているアイコンをクリックすると、本物件までの道順を見ることができます。
-
ホームページはこちら
北海道知事 石狩(1) 第8820号
いちりん開発(株) 【WEB面談可】〒001-0033
TEL:011-299-4905
FAX:011-299-4906
営業時間:9:00~18:00
定休日:毎週 土曜・日曜・祝日
- 加入団体
- (公社)全日本不動産協会、(一社)不動産協会
- 保証協会
- (公社)不動産保証協会
- 公正取引協議会
- 未加盟
※連合隊は物件情報の精度向上に努めています:「物件情報に誤りがある」「成約済みである」などお気付きの点がございましたらこちらよりご連絡ください。
写真枚数:18枚
札幌市内の小規模賃貸事務所(10万円以下)を数多くご紹介しております。
地下鉄から徒歩10分以内で通いやすくてお洒落な賃貸事務所を数多くご用意しておりますので、ぜひお問合せ下さいませ。 ★札幌小規模賃貸事務所: https://jimusyokensaku.ichi-rin.jp