第一山崎ビル
ここに注目!JR「札幌」駅から徒歩3分、地下鉄「さっぽろ」駅より徒歩8分
| 賃料・費用 |
9万9,000円
(+管理費等 1万9,800円)
坪単価:約8,257円/坪
敷54万円礼なし仲9万9,000円
保証金:なし
|
|---|---|
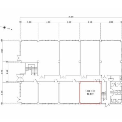
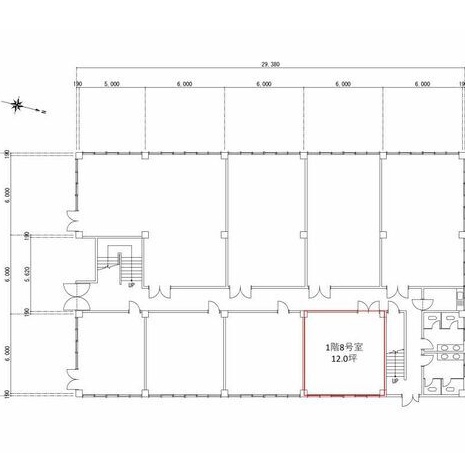
| 専有面積 | 39.66m² (11.99坪) |
| 住所 | 北海道札幌市北区北六条西6丁目2-12 |
| 交通 | 桑園駅(徒歩18分)|西4丁目駅(徒歩16分)|大通駅(徒歩17分)|北12条駅(徒歩12分)|札幌駅(徒歩4分)道順を見る |
| 階/階建 | 1階 / 3階建 |
| 築年月 | 築57年(1969年1月) |
| 駐車場 |
あり 駐車可能台数:3台
|
【WEB面談可】
空室確認、見学、詳細を知りたい方はこちら!
お電話の際は「連合隊の物件」とお伝えください。
情報掲載期限:あと20日(更新日 2025/12/26)
- 物件写真・概要
- 周辺地図
-
【WEB面談可】
空室確認、見学、詳細を知りたい方はこちら!おすすめポイント
- 駅徒歩5分以内
- 複数路線利用可
- 駅前立地
- 駐車2台以上可
- エアコン付
交通色がついているアイコンをクリックすると、本物件までの道順を見ることができます。
- 桑園駅JR札沼線、JR函館本線徒歩18分
- 西4丁目駅札幌市電山鼻線徒歩16分
- 大通駅札幌市営地下鉄南北線、札幌市営地下鉄東豊線、札幌市営地下鉄東西線徒歩17分
- 北12条駅札幌市営地下鉄南北線徒歩12分
- 札幌駅札幌市営地下鉄南北線、札幌市営地下鉄東豊線、JR札沼線、JR千歳線、JR函館本線徒歩4分
物件概要
所在階/建物の階建 1階(8) / 地上3階建 主要採光面 構造 鉄筋コンクリート(RC)造 間取り 契約期間 3年間 更新料/更新手数料 なし 権利金 住宅保険 引渡し 2025年10月初旬 管理人 取引態様 仲介 物件No 設備・特徴 - 複数路線利用可
- 駅前立地
- エアコン付
- 灯油暖房
- 男女別トイレ(共用部)
備考 共有会議室あり 主な周辺施設色がついているアイコンをクリックすると、本物件までの道順を見ることができます。
-
ホームページはこちら
北海道知事 石狩(1) 第8820号
いちりん開発(株) 【WEB面談可】〒001-0033
TEL:011-299-4905
FAX:011-299-4906
営業時間:9:00~18:00
定休日:毎週 土曜・日曜・祝日
- 加入団体
- (公社)全日本不動産協会、(一社)不動産協会
- 保証協会
- (公社)不動産保証協会
- 公正取引協議会
- 未加盟
※連合隊は物件情報の精度向上に努めています:「物件情報に誤りがある」「成約済みである」などお気付きの点がございましたらこちらよりご連絡ください。
写真枚数:4枚
札幌市内の小規模賃貸事務所(10万円以下)を数多くご紹介しております。
地下鉄から徒歩10分以内で通いやすくてお洒落な賃貸事務所を数多くご用意しておりますので、ぜひお問合せ下さいませ。 ★札幌小規模賃貸事務所: https://jimusyokensaku.ichi-rin.jp