MMS札幌駅前ビル
ここに注目!MMS札幌駅前ビルで、ビジネスの拠点を見つけませんか? JR「札幌」駅まで徒歩4分、地下鉄南北線「さっぽろ」駅も利用できる複数路線アクセスが魅力の駅前立地です。 広々とした90.48㎡のオフィスは、賃料391,391円(税込)、管理費120,428円。 24時間利用可能で、24時間セキュリティシステムを完備しており、安心してご利用いただけます。 セントラル空調やエアコン、照明器具も設置済みで、ブロードバンド回線も利用可能です。 共用部には男女別トイレがあり、快適な環境をサポート。 周辺にはコンビニ、銀行、飲食店が充実し、利便性の高いエリアです。 駐車場もございますので、お車での通勤・来客にも対応できます。 ビジネスを加速させるこの機会に、ぜひ一度ご内覧ください。お問い合わせをお待ちしております。
この物件の契約期間は 3年間です。
定期借家物件は、賃貸借契約期間満了後、原則として契約の更新ができない物件です。再契約の可否については不動産会社にお問合せください。
| 賃料・費用 |
39万1,391円
(+管理費等 12万428円)
坪単価:約1.4万円/坪
敷426万9,720円仲39万1,391円
|
|---|---|
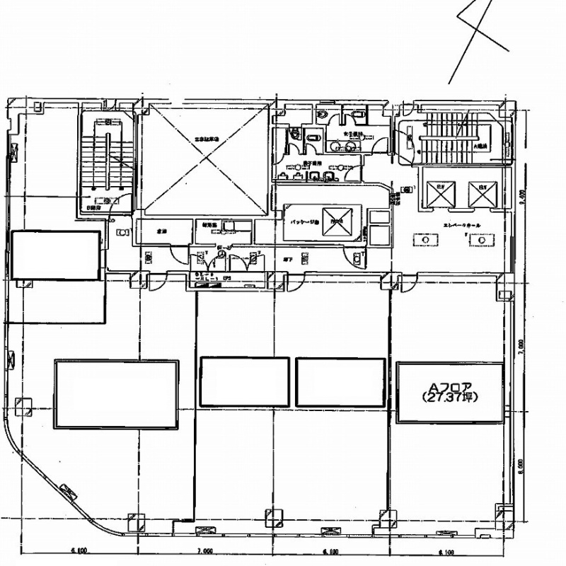
| 専有面積 | 90.48m² (27.37坪) |
| 住所 | 北海道札幌市中央区北四条西4丁目1 |
| 交通 | 札幌駅(徒歩4分)|大通駅(徒歩11分)道順を見る |
| 階/階建 | 5階 / 8階建(地下2階) |
| 築年月 | 築41年(1984年11月) |
| 駐車場 |
あり (4万4,000円/台)
|
【WEB面談可】
空室確認、見学、詳細を知りたい方はこちら!
お電話の際は「連合隊の物件」とお伝えください。
情報掲載期限:あと29日(更新日 2025/12/15)
- 物件写真・概要
- 周辺地図
-
【WEB面談可】
空室確認、見学、詳細を知りたい方はこちら!おすすめポイント
- 駅徒歩5分以内
- 複数路線利用可
- 駅前立地
- 駐車場あり
- 男女別トイレ
- エアコン付
- 光ファイバー
- 24時間セキュリティー
交通色がついているアイコンをクリックすると、本物件までの道順を見ることができます。
- 札幌駅札幌市営地下鉄南北線、札幌市営地下鉄東豊線、JR札沼線、JR千歳線、JR函館本線徒歩4分(約303m)
- 大通駅札幌市営地下鉄南北線、札幌市営地下鉄東豊線、札幌市営地下鉄東西線徒歩11分(約837m)
物件概要
所在階/建物の階建 5階(Aフロア) / 地上8階 地下2階建 主要採光面 構造 鉄骨鉄筋コンクリート(SRC)造 間取り 契約期間 定期借家(3年間) 権利金 住宅保険 引渡し 2026年4月初旬 管理人 取引態様 仲介 物件No 設備・特徴 - エアコン付
- セントラル空調
- 複数路線利用可
- 駅前立地
- エレベーター
- 男女別トイレ(共用部)
- 幹線道路沿い
- 商店街に面す
- 照明器具付
- 24時間セキュリティー
- ブロードバンド回線(光ファイバー等の高速インターネット)
- 24時間利用可
- 男女別トイレ
備考 事務所向き 定期借家契約年数相談。 主な周辺施設色がついているアイコンをクリックすると、本物件までの道順を見ることができます。
-
ホームページはこちら
北海道知事 石狩(1) 第8820号
いちりん開発(株) 【WEB面談可】〒001-0033
TEL:011-299-4905
FAX:011-299-4906
営業時間:9:00~18:00
定休日:毎週 土曜・日曜・祝日
- 加入団体
- (公社)全日本不動産協会、(一社)不動産協会
- 保証協会
- (公社)不動産保証協会
- 公正取引協議会
- 未加盟
※連合隊は物件情報の精度向上に努めています:「物件情報に誤りがある」「成約済みである」などお気付きの点がございましたらこちらよりご連絡ください。
写真枚数:13枚
札幌市内の小規模賃貸事務所(10万円以下)を数多くご紹介しております。
地下鉄から徒歩10分以内で通いやすくてお洒落な賃貸事務所を数多くご用意しておりますので、ぜひお問合せ下さいませ。 ★札幌小規模賃貸事務所: https://jimusyokensaku.ichi-rin.jp