桂和大通ビル50
ここに注目!地下鉄大通駅直結ビルです。テレビ塔目の前で大通に面しています。事務所・クリニックフロアです。
この物件の契約期間は 3年間です。
定期借家物件は、賃貸借契約期間満了後、原則として契約の更新ができない物件です。再契約の可否については不動産会社にお問合せください。
| 賃料・費用 |
43万1,062円
(+管理費等 12万697円)
坪単価:約1.4万円/坪
敷470万2,500円仲43万1,062円
|
|---|---|
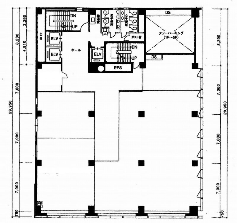
| 専有面積 | 103.64m² (31.35坪) |
| 住所 | 北海道札幌市中央区大通西1丁目14-2 |
| 交通 | 大通駅(徒歩1分)|バスセンター前駅(徒歩4分)|すすきの駅(徒歩10分)|豊水すすきの駅(徒歩8分)|札幌駅(徒歩15分) |
| 階/階建 | 3階 / 10階建(地下3階) |
| 築年月 | 築53年(1972年2月) |
| 駐車場 |
あり
|
【WEB面談可】
空室確認、見学、詳細を知りたい方はこちら!
お電話の際は「連合隊の物件」とお伝えください。
情報掲載期限:あと21日(更新日 2025/12/15)
- 物件写真・概要
- 周辺地図
-
【WEB面談可】
空室確認、見学、詳細を知りたい方はこちら!おすすめポイント
- 駅徒歩1分以内
- 複数路線利用可
- 駅前立地
- 商店街に面す
- 幹線道路沿い
- 駐車場あり
- 男女別トイレ
- 光ファイバー
- OAフロア
- 24時間セキュリティー
- 出店するなら…この業種がおすすめ!
- 飲食全般(重飲食含む)

- 喫茶・カフェ(軽飲食)

- バー・クラブ・スナック

- 小売・物販

- 美容・健康・介護

- 医療

- 教育・スクール

- 事務所

- アミューズメント

交通色がついているアイコンをクリックすると、本物件までの道順を見ることができます。
- 大通駅札幌市営地下鉄南北線、札幌市営地下鉄東豊線、札幌市営地下鉄東西線駅近!徒歩1分
- バスセンター前駅札幌市営地下鉄東西線徒歩4分
- すすきの駅札幌市営地下鉄南北線、札幌市電山鼻線徒歩10分
- 豊水すすきの駅札幌市営地下鉄東豊線徒歩8分
- 札幌駅札幌市営地下鉄南北線、札幌市営地下鉄東豊線、JR札沼線、JR千歳線、JR函館本線徒歩15分
物件概要
所在階/建物の階建 3階 / 地上10階 地下3階建 主要採光面 構造 鉄骨鉄筋コンクリート(SRC)造 間取り 契約期間 定期借家(3年間) 権利金 住宅保険 出店推奨業種 医療、事務所 出店不可業種 引渡し 相談 管理人 取引態様 仲介 物件No 6/6/5202/1 設備・特徴 - 複数路線利用可
- 駅前立地
- 商店街に面す
- 幹線道路沿い
- エレベーター
- 照明器具付
- OAフロア
- セントラル空調
- 24時間セキュリティー
- ブロードバンド回線(光ファイバー等の高速インターネット)
- 24時間利用可
- 男女別トイレ(共用部)
- 男女別トイレ
備考 事務所 クリニック 主な周辺施設色がついているアイコンをクリックすると、本物件までの道順を見ることができます。
-
ホームページはこちら
北海道知事 石狩(1) 第8820号
いちりん開発(株) 【WEB面談可】〒001-0033
TEL:011-299-4905
FAX:011-299-4906
営業時間:9:00~18:00
定休日:毎週 土曜・日曜・祝日
- 加入団体
- (公社)全日本不動産協会、(一社)不動産協会
- 保証協会
- (公社)不動産保証協会
- 公正取引協議会
- 未加盟
※連合隊は物件情報の精度向上に努めています:「物件情報に誤りがある」「成約済みである」などお気付きの点がございましたらこちらよりご連絡ください。
写真枚数:7枚
札幌市内の小規模賃貸事務所(10万円以下)を数多くご紹介しております。
地下鉄から徒歩10分以内で通いやすくてお洒落な賃貸事務所を数多くご用意しておりますので、ぜひお問合せ下さいませ。 ★札幌小規模賃貸事務所: https://jimusyokensaku.ichi-rin.jp