小田ビル
ここに注目!さっぽろ駅より徒歩6分!
| 賃料・費用 |
68万3,100円
(+管理費等 30万3,600円)
坪単価:約9,900円/坪
敷372万6,000円仲68万3,100円
|
|---|---|
| 専有面積 | 228.1m² (69坪) |
| 住所 | 北海道札幌市北区北九条西3丁目10 |
| 交通 | 札幌駅(徒歩6分)|北12条駅(徒歩5分)|大通駅(徒歩20分)|桑園駅(徒歩25分) |
| 階/階建 | 6階 / 8階建(地下1階) |
| 築年月 | 築34年(1991年6月) |
| 駐車場 |
あり (2万2,000円/台)
|
【WEB面談可】
空室確認、見学、詳細を知りたい方はこちら!
お電話の際は「連合隊の物件」とお伝えください。
情報掲載期限:あと25日(更新日 2025/12/15)
- 物件写真・概要
- 周辺地図
-
【WEB面談可】
空室確認、見学、詳細を知りたい方はこちら!おすすめポイント
- 駅徒歩5分以内
- 複数路線利用可
- 駅前立地
- 駐車場あり
- 男女別トイレ
- 光ファイバー
- 24時間セキュリティー
交通色がついているアイコンをクリックすると、本物件までの道順を見ることができます。
- 札幌駅札幌市営地下鉄南北線、札幌市営地下鉄東豊線、JR札沼線、JR千歳線、JR函館本線徒歩6分
- 北12条駅札幌市営地下鉄南北線徒歩5分
- 大通駅札幌市営地下鉄南北線、札幌市営地下鉄東豊線、札幌市営地下鉄東西線徒歩20分
- 桑園駅JR札沼線、JR函館本線徒歩25分
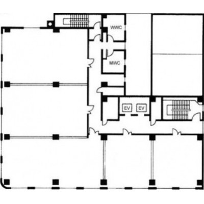
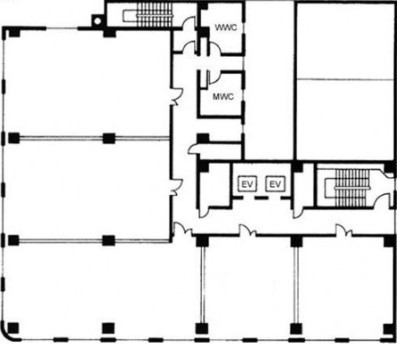
物件概要
所在階/建物の階建 6階 / 地上8階 地下1階建 主要採光面 構造 鉄骨鉄筋コンクリート(SRC)造 間取り 契約期間 権利金 住宅保険 引渡し 相談 管理人 取引態様 仲介 物件No 19/5/5202/1 設備・特徴 - 複数路線利用可
- 駅前立地
- 幹線道路沿い
- エレベーター
- 照明器具付
- セントラル空調
- 24時間セキュリティー
- ブロードバンド回線(光ファイバー等の高速インターネット)
- 24時間利用可
- 男女別トイレ
- 男女別トイレ(共用部)
備考 事務所 喫煙所有り 主な周辺施設色がついているアイコンをクリックすると、本物件までの道順を見ることができます。
-
ホームページはこちら
北海道知事 石狩(1) 第8820号
いちりん開発(株) 【WEB面談可】〒001-0033
TEL:011-299-4905
FAX:011-299-4906
営業時間:9:00~18:00
定休日:毎週 土曜・日曜・祝日
- 加入団体
- (公社)全日本不動産協会、(一社)不動産協会
- 保証協会
- (公社)不動産保証協会
- 公正取引協議会
- 未加盟
※連合隊は物件情報の精度向上に努めています:「物件情報に誤りがある」「成約済みである」などお気付きの点がございましたらこちらよりご連絡ください。
写真枚数:2枚
札幌市内の小規模賃貸事務所(10万円以下)を数多くご紹介しております。
地下鉄から徒歩10分以内で通いやすくてお洒落な賃貸事務所を数多くご用意しておりますので、ぜひお問合せ下さいませ。 ★札幌小規模賃貸事務所: https://jimusyokensaku.ichi-rin.jp